Продається квартира Київ, Голосіївський, Михайла Максимовича 7в (№ 213-183-286)

Ціна: 100 000 $
Характеристики
Ціна: | 100 000 $ |
---|---|
№ об'єкта: | 213-183-286 |
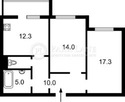
Кімнат: | 2 розд |
Поверх: | 11 / 24 |
Площа: | 63 / - / 12 м2 |
Є-Оселя: | - |
Є-Відновлення: | - |
Власник: | - |
Ексклюзив: | - |
Адреса: Київ, Голосіївський, Михайла Максимовича 7в
Квартира мебльована. Житловий комплекс має закриту охоронювану територію, парковку біля будинку, дитячий майданчик і розвинену інфраструктуру. У пішій доступності: - метро 'Васильківська' — до 15 хвилин ходьби; - магазин 'Сільпо', Sport Life, аптеки, відділення банку; - школа, дитячий садок; - ВДНГ — ідеальне місце для прогулянок і відпочинку. Квартира чудово підійде як для сім’ї з дітьми, так і для тих, хто цінує комфорт, безпеку та зручне розташування..
Вид обєкта: Вторинний ринок;
Тип будинку: Житловий фонд 2011-2020-і;
Клас житла: Комфорт;
Планування: Роздільна;
Cанвузол: Роздільний;
Опалення: Централізоване;
Меблювання: Так;
Побутова техніка: Холодильник, Мікрохвильова піч, Духова шафа, Плита, Пральна машина;
Мультимедіа: Wi-Fi;
Комунікації: Асфальтована дорога, Центральна каналізація, Вивіз відходів, Центральний водопровід;
Інфраструктура (до 500 метрів): Відділення банку, банкомат, Кінотеатр, театр, Аптека, Лікарня, поліклініка, Дитячий садок, Ринок, Метро, Парк, зелена зона, Дитячий майданчик, Відділення пошти, Бювет, Ресторан, кафе, Школа, Магазин, кіоск, Супермаркет, ТРЦ, Зупинка транспорту;
Ландшафт (до 1 км.): Ліс, Парк;
Інклюзивність: Двері ліфту шириною від 0,9 м., Поручні на пандусі, Пандус довжиною понад 2,4 м., Поручні на сходах, Широкі двері в підїзді (від 0,9 м.);