Продається квартира Київ, Дніпровський (№ 213-181-453)

Ціна: 99 999 $
Характеристики
Ціна: | 99 999 $ |
---|---|
№ об'єкта: | 213-181-453 |
Кімнат: | 2 |
Поверх: | 2 / 25 |
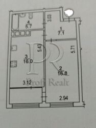
Площа: | 50 / 20 / 15 м м2 |
Є-Оселя: | - |
Є-Відновлення: | - |
Власник: | - |
Ексклюзив: | - |
Адреса: Київ, Дніпровський
Євгена Сверстюка вул. (Марини Раскової), 6-Г
Продаж стильної 2-кімнатної квартири вільного планування в ЖК Галактика.
Квартира розташована на вул.Євгена Сверстюка 6 Г біля метро Лівобережна.
На зручному і безпечному 2 му поверсі 25 поверхового будинку з сучасним вільним плануванням - спальня і простора кухня - вітальня.
Санвузол суміжний.
Зроблено якісний стильний ремонт.
В будинку центральне опалення, лічильники води, тепла, електроенергії.
На будинку встановлено генератор.
При відключенні електроенергії будуть працювати ліфти (3 шт, з них 2 пасажирських і 1 вантажний), буде працювати опалення і водопостачання.
Доглянута вхідна група і прибудинкова територія, ведеться відеоспостереження, в кожному під'їзді є охоронець-консьєрж.
У будинку зручна інфраструктура: кафе, салон краси, магазин, аптека, наземний і підземний паркінг.
Розвинена інфраструктура поряд з ЖК, неподалік школи, дитячі садочки, супермаркети, ТРЦ, парк Перемога, міський пляж Микільська Слобідка, місця для прогулянок, дитячі майданчики, Нова пошта.
Зручна транспортна розвязка: станція метро Лівобережна в 5 хвилинах пішки, зупинка транспорту в 5 хвилинах пішки, зручний виїзд на міст Патона.
Поряд є все для комфортного проживання та відпочинку: чудовий парк для прогулянок і набережна Дніпра.
Ідеальний варіант для інвестиції.
Показ в зручний час.
Телефонуйте!
ID: 89396
Євроремонт