Продається квартира Київ, Деснянський, Радістів (№ 213-158-426)

Ціна: 61 000 $
Характеристики
Ціна: | 61 000 $ |
---|---|
№ об'єкта: | 213-158-426 |
Кімнат: | 1 |
Поверх: | 8 / 11 |
Площа: | 45 / - / 12 м2 |
Є-Оселя: | - |
Є-Відновлення: | - |
Власник: | - |
Ексклюзив: | - |
Адреса: Київ, Деснянський, Радістів
Продаж 1 к квартири, 45,2 м ЖК Лісова Казка.
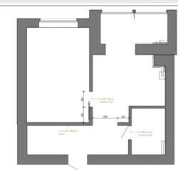
Продаж 1 кімнатної квартири з найкращим плануванням в ЖК Лісова Казка, вул . Радистів 34-Е, площа якої 45,2 кв.м. Розташована на 8 поверсіu002F11 поверхівки. В квартирі розпочато ремонтні роботи. Зроблено електромонтажні, сан технічні роботи, розведена тепла підлога, встановлена система очистки води, зроблено перепланування згідно вказаного на фото проекту. Встановлено газовий котел Bosh. Є готовий дизайн проєкт! Житловий комплекс лісова казка в Києві, який розташований в Деснянському районі, поряд із сосновим лісом. Цегляний будинок. Поряд, у відстані 2 км. знаходиться метро Лісова! Також під будинком зупинка громадського транспорту. Є лікарня, автовокзал, відділення банку, парк, зелена зона, дитяча площадка. Поруч є ліцей , дитячі садочки, магазини, ТЦ, ринок, театр, аптеки, салони. Відноситься будинок до комфортного класу. Закрита територія. Автономне газове опалення в квартирі. Додаю декілька фото дизайн проекту. Ціна 61 000 за 45,2 м + в подарунок залишаються буд. матеріали Продаж квартири без доручень, власник в Україні. Ласкаво просимо на перегляд квартири.
Вид обєкта: Вторинний ринок;
Тип будинку: Житловий фонд 2011-2020-і;
Назва ЖК: Лісова Казка;
Тип стін: Цегляний;
Клас житла: Комфорт;
Планування: Роздільна;
Cанвузол: Суміжний;
Опалення: Індивідуальне газове;
Ремонт: Після будівельників;