Продається квартира Київ, Голосіївський, Березова вул., 44 (№ 213-140-276)

Ціна: 90 000 $
Характеристики
Ціна: | 90 000 $ |
---|---|
№ об'єкта: | 213-140-276 |
Кімнат: | 2 |
Поверх: | 2 / 4 |
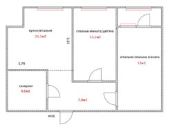
Площа: | 48.7 / 24 / 24.7 м? м2 |
Є-Оселя: | - |
Є-Відновлення: | - |
Власник: | - |
Ексклюзив: | - |
Адреса: Київ, Голосіївський, Березова вул., 44
Березова вул., 44
Локація: Солом?янський район; вул. Березова 44,; ЖК Parkland Характеристики квартири: • Площа: загальна 48.7 м? (житлова 24.0 м?)
• Кількість кімнат: 2
• Поверх: 2/4
• Тип будинку: монолітно-каркасний
• Опалення: індивідуальне Стан та ремонт: • Повністю укомплектована всіма необхідними меблями та технікою: посудомийна машина, холодильник, пральна машина, бойлер на 100 літрів. • По всій квартирі розведена тепла підлога. Багато шаф для зберігання речей. Інфраструктура та локація: • Транспорт: зупинка громадського транспорту біля головного входу в ЖК та до 15 хвилин пішки до метро Васельківська.
• Магазини, супермаркети: багато магазинів, кав?ярень, ресторанів, 2 відділення Нової пошти є на території ЖК.
• Школи, садки: на території ЖК є приватний садочок. До 20 хвилин пішки є державні школи та садки.
• Парковка/паркінг: гостьовий паркінг, є можливість орендувати парко - місце на закритому паркінгу. Також є можливість купити/орендувати гараж.
• Також на території ЖК є дитячі та спортивні майданчики.
Бетонно монолітний
Роздільне
Чудовий стан