Продається квартира Київ, Михайла Донця вул.,, 2б (№ 213-107-634)

Ціна: 74 000 $
Характеристики
Ціна: | 74 000 $ |
---|---|
№ об'єкта: | 213-107-634 |
Кімнат: | 1 |
Поверх: | 22 / 24 |
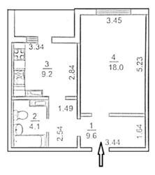
Площа: | 43 / 18 / 10 м? м2 |
Є-Оселя: | - |
Є-Відновлення: | - |
Власник: | - |
Ексклюзив: | - |
Адреса: Київ, Михайла Донця вул.,, 2б
Продаж 1-к квартири, вул. Донця, 2-б. Новий будинок. Фото відповідають.
Все нове. Велика вбиральня, просторий санвузол,
кімната – 18м., кухня – 10м., лоджія – 5м.
22/24 поверхового, чудовий вид з вікон.
Обладнана пральною, посудомийною,
2 кондиціонери Electrolux, бойлер, варильна, духовка.
Консьєрж + домофон. У дворі – паркінг, дитячий майданчик.
Чудова транспортна, соціально-побутова інфраструктура.
Низькі комунальні, встановлений теплолічильник,
будинок винятково теплий.