Продається квартира Київ, Подільський, 14.2 будинок (№ 213-099-770)

Ціна: 82 000 $
Характеристики
Ціна: | 82 000 $ |
---|---|
№ об'єкта: | 213-099-770 |
Кімнат: | 2 |
Поверх: | 2 / 16 |
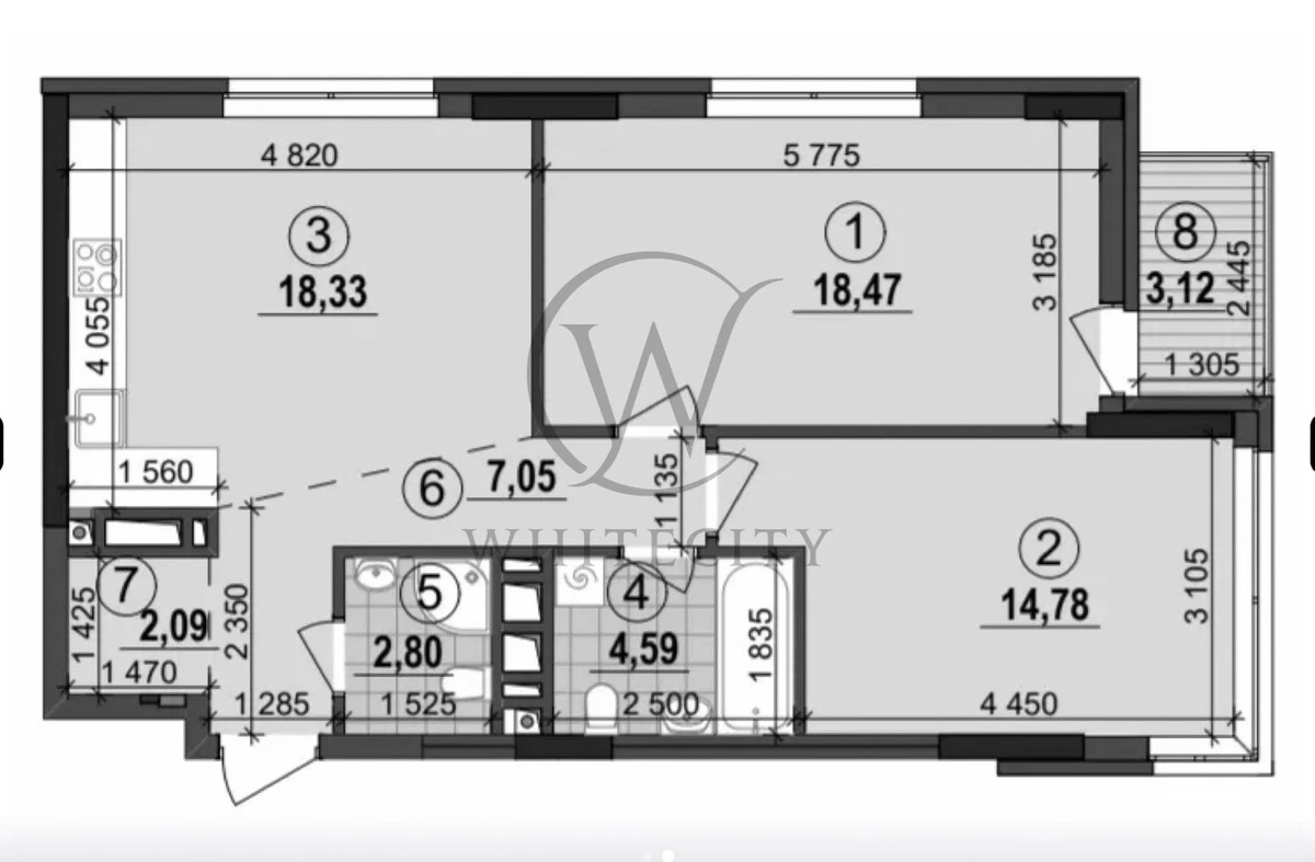
Площа: | 69 / - / 18 м2 |
Є-Оселя: | - |
Є-Відновлення: | - |
Власник: | - |
Ексклюзив: | - |
Адреса: Київ, Подільський, 14.2 будинок
ЖК Варшавський 2 будинок 14.2, 2к, 69 м2.
Подільський район, ЖК Варшавський 2, будинок 14.2 ЖК Варшавський квартал - один з самих популярних ЖК в Києві. Комплекс комфорту класу, розташований в районі з великою кількістю зелених зон. Концепція місто в місті - своя територія з кафе, магазинами, спортивними та дитячими майданчиками, велосипедними доріжками, дитячим садочком. Закрита, охороняєма територія від авто та сторонніх. Будинок 14.2, введений в експлуатацію, інвестори вже отримують право власності. Характеристики будинку: монолітно-каркасна технологія, стіни з газобетону; утеплення стін - мінеральна вата; автономне опалення - у комплексі декілька газових котелень; вхідні групи в єдиній стилістиці; колясочні на перших поверхах. Характеристики квартири: 4 безпечний поверх; 69,26 м2 загальна площа; 2 роздільні спальні; кухня-вітальня; 2 санвузли; гардеробна; балкон. Комплектація квартири: машинна стяжка; сталеві радіатори; двокамерні енергозберігаючі склопакети; вогнетривкі, металеві вхідні двері. Зручна транспортна розвязка, в 6хв. майбутні станції метро «Мостицька» та «Варшавська», 15 хв. Виноградарський ліс, 5 хв. ТРЦ Ретровиль. Продаж по переуступці..
Вид обєкта: Вторинний ринок;
Тип будинку: Житловий фонд від 2021 р.;
Назва ЖК: Варшавський 2;
Тип угоди: Переуступка;
Планування: Роздільна;