Продається квартира Київ, Салютна, 2, м. Нивки (№ 213-095-746)

Ціна: 245 000 $
Характеристики
Ціна: | 245 000 $ |
---|---|
№ об'єкта: | 213-095-746 |
Кімнат: | 4 |
Поверх: | 7 / 7 |
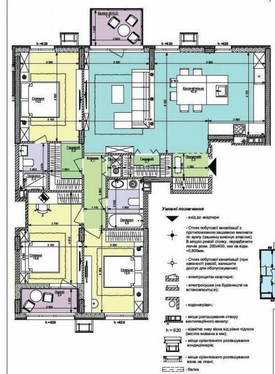
Площа: | 111 / 40 / 44 м2 |
Є-Оселя: | - |
Є-Відновлення: | - |
Власник: | - |
Ексклюзив: | - |
Адреса: Київ, Салютна, 2, м. Нивки
Пропоную квартиру з трьома спальнями та терасою у новому сучасному житловому комплексі «Файна Таун». Будинок вже введено в експлуатацію , 7 черга. Основні характеристики: Загальна площа: 111, 3 м² Житлова площа: 40, 1 м² Кухня-вітальня: 44 м² Спальні: 14 м², 12, 5 м², 13, 6 м² (є можливість збільшення за рахунок лоджії). Поверх: 7 із 7 Вид: З однієї сторони — на променадну алею. З іншої — на внутрішній двір (сусідній будинок розташований на комфортній відстані). Особливості планування: Простора кухня-вітальня — ідеальне місце для сімейних зустрічей та прийому гостей. Тераса з видом на променад, що додає затишку та дарує чудові краєвиди. Три окремі спальні для комфортного проживання. Два санвузли для зручності мешканців. Два гардероби, які забезпечують достатньо місця для зберігання речей. Переваги ЖК «Файна Таун»: Інфраструктура: Комплекс має усе необхідне для комфортного життя: магазини, кав’ярні, дитячі майданчики, спортивні зони, школи та садочки. Закрита територія: Охорона та відеоспостереження 24/7. Розташування: Зручна транспортна розв’язка та близькість до основних інфраструктурних об’єктів Києва. Ця квартира — чудовий вибір для сімейного проживання завдяки просторому плануванню, сучасному житловому комплексу та комфортній локації.