Продається квартира Київ, Голосіївський, Максимовича вул. (Трутенка Онуфрія), 7в, м. Васильківська (№ 213-094-216)

Ціна: 92 000 $
Характеристики
Ціна: | 92 000 $ |
---|---|
№ об'єкта: | 213-094-216 |
Кімнат: | 2 розд |
Поверх: | 2 / 14 |
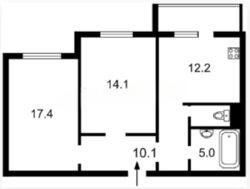
Площа: | 63.8 / 31.5 / 12.2 м? м2 |
Є-Оселя: | - |
Є-Відновлення: | - |
Власник: | - |
Ексклюзив: | - |
Адреса: Київ, Голосіївський, Максимовича вул. (Трутенка Онуфрія), 7в, м. Васильківська
Будинок навпроти Нової Англії.
Висота стелі 2.8м., нові радіатори та бойлер. Санвузол відзначається кахельним покриттям та встановленою якісною сантехнікою. Функціональне планування дозволяє максимально використовувати простір квартири. Встановлені лічильники на воду, тепло та електрику. Закритий комплекс. Прибудинкова територія доглянута та благоустроєна. Район має розвинену інфраструктуру: поруч розташовані школа, дитячий садок та супермаркет. Транспортна розв'язка дуже зручна, в 10хв. доступності до станції метро 'Васильківська'.
Українська панель
Чудовий стан