Продається квартира Київ, Степана Руданського вул.,, 3А (№ 213-086-660)

Ціна: 109 000 $
Характеристики
Ціна: | 109 000 $ |
---|---|
№ об'єкта: | 213-086-660 |
Кімнат: | 2 |
Поверх: | 14 / 16 |
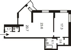
Площа: | 75 / 35 / 10 м? м2 |
Є-Оселя: | - |
Є-Відновлення: | - |
Власник: | - |
Ексклюзив: | - |
Адреса: Київ, Степана Руданського вул.,, 3А
продам квартиру в сучасному будинку 2013 р. з підземним паркінгом, в найбезпечнішому районі біля посольства США та офіса НАТО в оточенні 3-х парків і трьох станцій метро. Будинок з цегли, супертеплий, 3 ліфта з генераторами, відеоспостереження, консьєрж подбають про Вашу безпеку. Також ГЕНЕРАТОРИ забезпечують насосну станцію і роботу котельної при можливому відключенні. Квартира вільна. Ідеальні документи. Економні комунальні. В квартирі 2 санвузла, є гардероб, засклений балкон. Виконаний якісний ремонт, підлога з підігрівом, паркетна дошка і кахель, вікна Rehau. Продається з технікою (посудомийка, духовка, витяжка, пральна машина, бойлер, спліт -система, ТВ-плазма ) і меблями. Підключена сигналізація, лічильники тепла, терморегулятори. Висота стелі 3,02 м. В комплексі присутня вся необхідна інфраструктура. В будинку 2 продуктових магазина, ветклініка, приватна клініка і фітнес-студія, приватний дитячий сад. Також поблизу школи, хореографічне училище, художня школа, музична школа, Університет КРОК, школа англійської мови, аптеки, банки, т.і.
І- дуже важливо для мегаполісу- наявність зелених зон для активного відпочинку і прогулянок- парків Нивки, Дубки і Сирецький, які містять мотузковий парк, озеро, тренувальний майданчик, дитячу залізницю. Чудова транспортна розв’язка. Метро Дорогожичі, Берестейська, Сирець – 12 хвилин пішки, поруч зупинка автобусів, трамваїв, маршруток, міської електрички.
Додатково продається місце в паркінгу.