Продається квартира Київ, Оболонський, Сім'ї Кульженків, 31А (№ 213-077-832)

Ціна: 102 000 $
Характеристики
Ціна: | 102 000 $ |
---|---|
№ об'єкта: | 213-077-832 |
Кімнат: | 1 |
Поверх: | 25 / 25 |
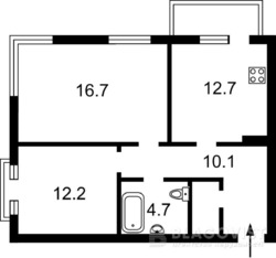
Площа: | 61 / - / 12 м2 |
Є-Оселя: | + |
Є-Відновлення: | - |
Власник: | - |
Ексклюзив: | - |
Адреса: Київ, Оболонський, Сім'ї Кульженків, 31А
Сімї Кульженків 31а, 2 кімнатна, ЖК 'Яскравий', Мінська, Оболонь, Квартира в новому комплексі з розвиненою інфраструктурою. Новий ремонт, вбудовані меблі, побутова техніка, склопакети, лоджія засклена, лічильники електрики, води гарячої, холодної, опалення, підлога з підігрівом. Прекрасний кваєвид на озеро та місто. Поруч школа, дитячий садок, супермаркет 'Сільпо', Леруа Мерлен, кафе та салони краси. Ст.м. Мінська 15 хвилин транспортом. Можна під Є оселю..