Продається квартира Київ, Подільський, Олександра Олеся вул., 5 (№ 213-075-271)

Ціна: 81 500 $
Характеристики
Ціна: | 81 500 $ |
---|---|
№ об'єкта: | 213-075-271 |
Кімнат: | 2 |
Поверх: | 10 / 16 |
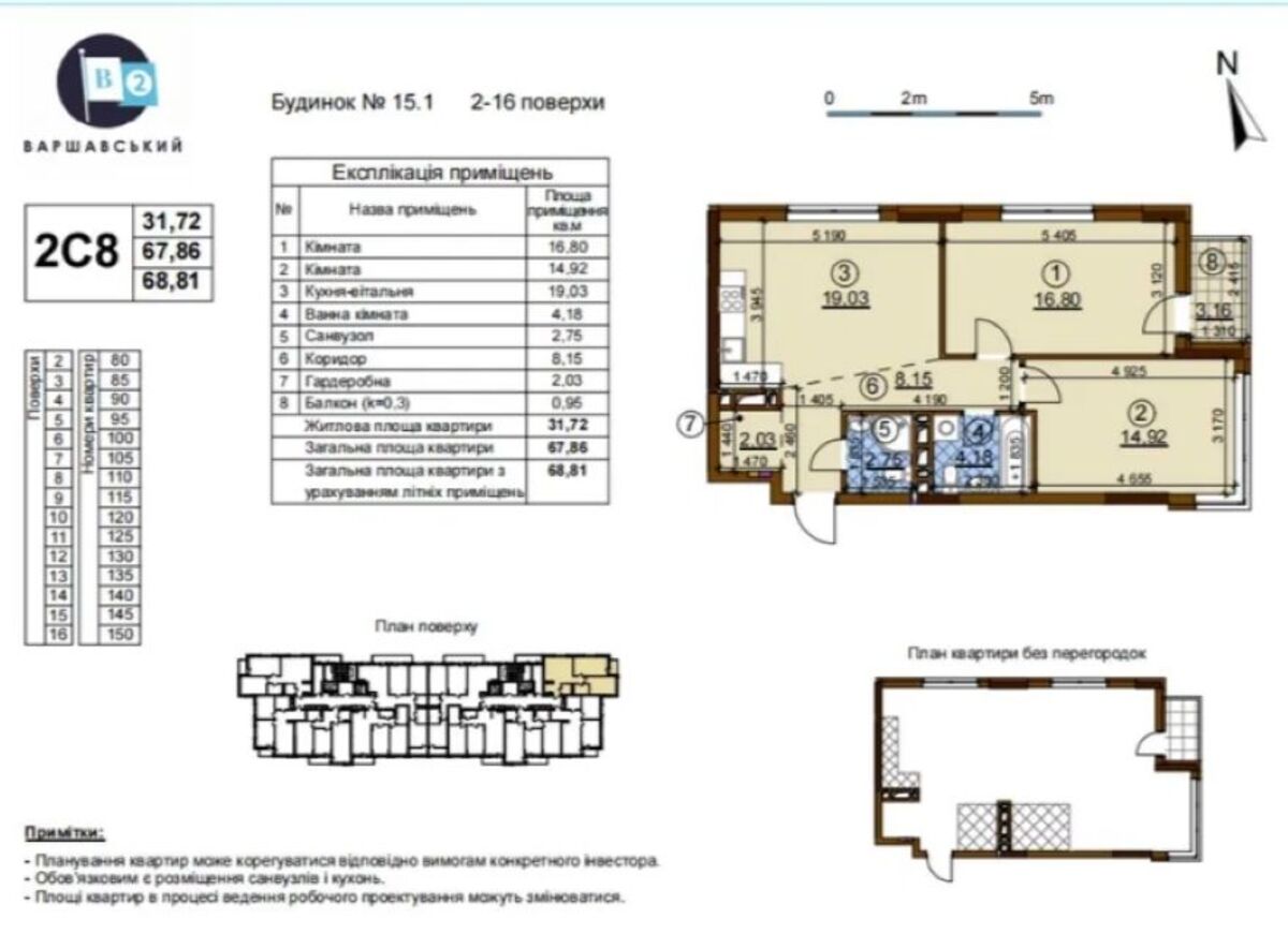
Площа: | 69 / 32 / 19 м? м2 |
Є-Оселя: | - |
Є-Відновлення: | - |
Власник: | - |
Ексклюзив: | - |
Адреса: Київ, Подільський, Олександра Олеся вул., 5
Олександра Олеся вул., 5
Продаж 2 кімнатної квартири в сучасному житловому комплексі комфорт класу ЖК Варшавський-2, вул. Олександра Олеся, 5 (буд. №16.1), Подільський район.
Будинок зданий, є опалення, можна одразу заходити на ремонт.
Розвинена інфраструктура, поруч багато магазинів, клінік, шкіл, садочків, великий ТЦ. Вікна на північну сторону.
Це ідеальне місце для комфортного життя у сучасному мікрорайоні Києва.
--------------------
Планування:
--------------------
• Кухня-вітальня: 19 м? — простора та світла зона для відпочинку та спілкування з родиною та друзями.
• Кімнати: - перша кімната: 16,8 м? - друга кімната: 14,9 м?
• Санвузли: два (4,2 м? та 2,8 м?) — зручність для всієї родини
• Гардеробна кімната
• Балкон - ідеальне місце для відпочинку або створення зеленої зони.
-------------------------------
Ключові Переваги:
-------------------------------
1. Будинок сімейного типу, розділений на дві секції, на поверсі усього 5 квартир. Для дітей - безпечна закрита територія , сучасний дитячий майданчик .
2. Чудова інсоляція (профілактика грибка, значна економія на опаленні) .
3. Чисте повітря - Виноградар взагалі вважається екологічно благополучним районом , плюс на цьому поверсі продукти життєдіяльності автівок - Вам не страшні .
4. Всі кімнати просторі , легко облаштувати зручну і затишну кухню вітальню , спальні також дозволяють реалізувати будь які дизайнерські рішення.
5. Зручний балкон, де можна зустрічати день запашною кавою, насолоджуючись краєвидом .
6. Чудова інфраструктура навкруги , забудовник продовжує реалізовувати концепцію «міста в місті» , поруч є все необхідне для комфортного проживання .
7. Транспорт: у районі активно будується метро, що забезпечить зручний доступ до інших частин міста.
8. Зелена зона: Близькість парків і скверів для прогулянок та відпочинку на свіжому повітрі.
---
Оформлено право власності.
Менше 3-х років.
Свої податки сплачуємо від оцінки. Дзвоніть або пишіть у вайбер/телеграм та записуйтесь на перегляд!
Газоблок
Роздільне
Від будівельників вільне планування