Продається квартира Київ, Подільський, проспект Європейського Союзу 72 ( проспект Правди ) (№ 213-074-380)

Ціна: 71 000 $
Характеристики
Ціна: | 71 000 $ |
---|---|
№ об'єкта: | 213-074-380 |
Кімнат: | 1 розд |
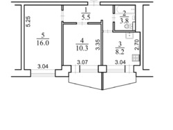
Поверх: | 7 / 16 |
Площа: | 45 / - / 8 м2 |
Є-Оселя: | - |
Є-Відновлення: | - |
Власник: | - |
Ексклюзив: | - |
Адреса: Київ, Подільський, проспект Європейського Союзу 72 ( проспект Правди )
- 2 кімнатна квартира адреса : проспект Європейського Союзу 72 ( проспект Правди ) Подільський р-н, масив Виноградар
- Будинок серії БПС - Поверх - 7 u002F 16 - Площа - 45,6 • В квартирі гарний ремонт з якісних матеріалів (ламінат, кахель, плитка, шпалери під фарбування) техніка та меблі! • Тепла підлога! • КУХНЯ має продовження на утеплений засклений балкон та обідню зону зі штучного каменю, холодильник, варильна поверхня, духова шафа, розкладний диванчик. • САНВУЗОЛ : нова ванна, пральна машина, раковина зі штучного каменю, бойлер. • СПАЛЬНЯ кімната : двоспальне ліжко з ортопедичним матрацом та шухлядами для зберігання , шафа-купе, телевізор. • ЗАЛА : диван, робоча зона, шафа- купе, розкладне крісло, телевізор, кондиціонер. Вся техніка, меблі залишаються новим власникам! • Документи готові до продажу! Один власник! Прописаних нема ! • Розвинена инфраструктура та транспортна розв?язка ! Поряд ТРЦ РЕТРОВІЛЬ, ЖК «ВАРШАВСЬКИЙ» Перспективний район , будується зелена лінія метро!
Вид обєкта: Вторинний ринок;
Тип будинку: Житловий фонд 80-90-і;
Тип стін: Панельний;
Планування: Роздільна;
Cанвузол: Суміжний;
Опалення: Централізоване;
Ремонт: Євроремонт;
Меблювання: Так;
Побутова техніка: Духова шафа, Варильна панель, Пральна машина, Мікрохвильова піч, Холодильник;
Мультимедіа: Wi-Fi, Швидкісний інтернет, Телевізор, Кабельне, цифрове ТБ;
Комфорт: Меблі на кухні, Ванна, Грузовий ліфт, Консерж, Відеоспостереження, Ліфт, Кондиціонер, Підігрів підлоги, Балкон, лоджія;
Комунікації: Вивіз відходів, Центральна каналізація, Центральний водопровід, Електрика, Асфальтована дорога;
Інфраструктура (до 500 метрів): Бювет, Аптека, Зупинка транспорту, Лікарня, поліклініка, Ресторан, кафе, Дитячий садок, Ринок, Школа, Метро, Магазин, кіоск, Парк, зелена зона, Відділення банку, банкомат, Дитячий майданчик, Супермаркет, ТРЦ, Кінотеатр, театр, Відділення пошти;
Ландшафт (до 1 км.): Озеро, Парк, Ліс;