Продається квартира Київ, ЖК Smart House, м. Берестейська (№ 213-063-650)

Ціна: 54 000 $
Характеристики
Ціна: | 54 000 $ |
---|---|
№ об'єкта: | 213-063-650 |
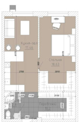
Кімнат: | 2 |
Поверх: | 9 / 13 |
Площа: | 48 / - / 20 м2 |
Є-Оселя: | - |
Є-Відновлення: | - |
Власник: | - |
Ексклюзив: | - |
Адреса: Київ, ЖК Smart House, м. Берестейська
Двокімнатна євродвушка біля метро Берестейська в ЖК Smart House ( 5 років). Дім теплий, сучасний євроремонт, меблі та побутова техніка. Цілодобова охорона та відеонагляд. В будинку є Генератор промисловий, бомбосховище, магазини, кафе та спортклуб. Зручна транспортна розвязка. До метро Берестейська 10 хв. пішки.