Продається квартира Київ, Шевченківський, Берестейський просп. (Перемоги), 20 (№ 213-059-288)

Ціна: 63 000 $
Характеристики
Ціна: | 63 000 $ |
---|---|
№ об'єкта: | 213-059-288 |
Кімнат: | 2 |
Поверх: | 2 / 9 |
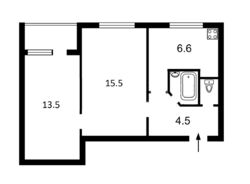
Площа: | 44 / 29 / 7 м? м2 |
Є-Оселя: | - |
Є-Відновлення: | - |
Власник: | - |
Ексклюзив: | - |
Адреса: Київ, Шевченківський, Берестейський просп. (Перемоги), 20
Берестейський просп. (Перемоги), 20
Продаж двокімнатної квартири майже в центрі Києва.
Поруч метро Політехнічний інститут, ТРЦ Smart Plaza. Площа 44м2, поверх - 2, Стан -гарний житловий. Електрика, сантехніка мінялись! Заїжджай і живи, капіталовкладень не потребує.
Гарний варіант під орендний бізнес!
Хороший стан