Продається квартира Київ, Голосіївський, вул. Шеметів Братів, будинок No 7, (№ 213-058-876)

Ціна: 90 000 $
Характеристики
Ціна: | 90 000 $ |
---|---|
№ об'єкта: | 213-058-876 |
Кімнат: | 1 |
Поверх: | 3 / 8 |
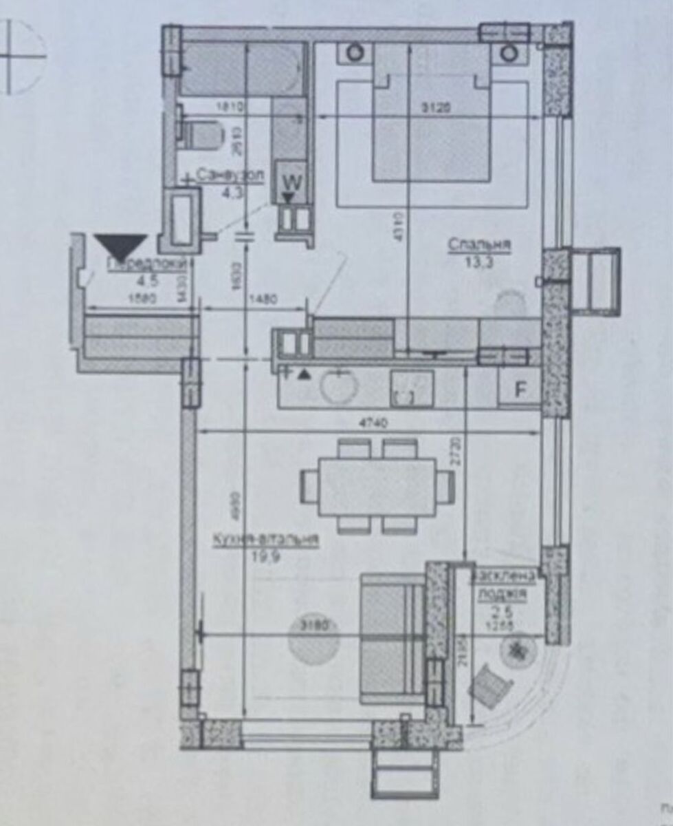
Площа: | 44 / - / 19 м2 |
Є-Оселя: | - |
Є-Відновлення: | - |
Власник: | - |
Ексклюзив: | - |
Адреса: Київ, Голосіївський, вул. Шеметів Братів, будинок No 7,
Продається 1-кімнатна квартира в ЖК 'Республіка'., Більша частина податків на нашій стороні, гарне планування, вікна на схід, зручне розташування в найкращому житловому комплексі Києва. Адреса: вул. Шеметів Братів, будинок No 7, квартира № 9-76. Загальна площа: 44,7 кв.м Житлова площа: 13,3 кв.м Кількість кімнат: 1 Поверх: 3 Висота стелі 2,7 м Планування: окрема спальня + кухня-вітальня + санвузол + коридор + лоджія (можна під кабінет або прибрати). Переваги квартири: — підходить для 'єОселя', що дає можливість оформлення іпотеки зі зниженими відсотковими ставками; — зручна лоджія може стати чудовим робочим місцем для людей з віддаленою роботою, створюючи затишний простір для концентрації; — вікна спальні розташовані на схід, що дозволить легко просинатись у вранішніх проміннях сонця; — близькість до ТРЦ 'Республіка' і Сільпо — всього за 3 хвилини пішки можна дістатись до 4го входу біля якого розташований Сільпо у найбільшому торгівельному центрі України, що дозволяє легко та швидко скористатися всіма можливостями шопінгу і розваг. — якісна шумоізоляція, утеплення стін та сучасне планування забезпечать комфортне проживання; — кімната для велосипедів на першому поверсі дозволить зберігати персональний транспорт або коляску в зручному, безпечному місці. Інфраструктура ЖК: — безкоштовні спортивні та розважальні зони — мешканці мають доступ до футбольного поля, тенісних кортів, баскетбольного майданчика, відкритого басейну, зони барбекю та фітнес-зон. — чудовий ландшафтний дизайн і оздоблення на території комплексу і у дворах створює відчуття комфорту і бажання більше часу проводити на свіжому повітрі: зручні лавки, лежаки, гамаки і навіть просторі альтанки для зустрічі з друзями; — сучасний дитячий майданчик виконаний з якісних матеріалів, зроблений із урахуванням всіх норм безпеки і при цьому масці-шоу низку цікавих елементів для дітей різного віку від пісочниці до гірок; — інтелектуальна система розпізнавання облич у дворі і загальних територіях забезпечуює не тільки безпеку, а й зручність пересування по комплексу без картки-ключа; — спеціально обладнані паркувальні майданчики за межами двору, що усувають проблему пошуку місця для паркування, бо дозволяють паркуватися тільки тим, хто живе в безпосередній близкості. Це усуває проблему паркувальних колапсів і нагромадження транспорту у дворах; — сучасні освітні заклади для дітей, такі як: 'Respublika Kids' де дітки віком від 2 до 6 років можуть здобути якісну дошкільну освіту за інноваційною програмою STEAM та — вся необхідна інфраструктура для якісного життя і дозвілля прям на території комплексу: кав?ярні, кафе, салони краси і барбершопи, стоматологи та косметологи, є навіть музична школа, та багато іншого. Освітні заклади на території ЖК: — Дитячий садок 'Respublika Kids' – для дітей від 2 до 6 років, пропонує програму, що включає англійську мову, сучасну хореографію, дитячий фітнес, математику, заняття з психологом та логопедом. Акцент на розвиток емоційного інтелекту і креативності. — Початкова школа 'Respublika Kids' – використовує STEAM-методики (наука, технології, інженерія, мистецтво, математика) для учнів молодших класів. Програма орієнтована на розвиток лідерських якостей та творчого мислення. — Respublika Club – простір для позашкільного розвитку. Проводить заняття з різних дисциплін, включаючи мистецтво, спорт і технічні науки. Підходить для дітей та дорослих, які шукають додаткові заняття поза шкільною програмою. — Спортивна школа А+ – для дітей різного віку, спрямована на професійні тренування з футболу, баскетболу, тенісу та інших видів спорту. Зосереджена на фізичному розвитку і командній роботі. — Академія сучасної освіти – пропонує інноваційні освітні програми для учнів початкової та середньої школи з акцентом на розвиток критичного мислення та самостійності. Живе середовище: — молоді і сучасні сусіди — комплекс приваблює молодих та сучасних людей, що створює активний і дружній суспільний вайб. Тут ви відчуєте себе частиною спільноти, яка підтримує відкриті і теплі стосунки; — скандинавський урбанізм — проживаючи в ЖК 'Республіка', ви отримуєте відчуття життя в сучасному скандинавському місті, де все необхідне знаходяться на відстані пішої прогулянки, де немає місця пафосу і домінує доцільність та мінімалізм, сучасна архітектура надихає, а низька забудова прибирає відчуття мурашника і дає людям відчуття спільноти. Для Вашої зручності та економії часу я зняв невеличкі відеоогляди квартири, а також будинка ззовні і прибудинкової території. Звертайтесь до мене в телеграм і я із задоволенням: — відправлю відеоогляди для додаткового ознайомлення з квартирою; — відповім на будь-які запитання; — домовимось про зустріч для перегляду. Бажаю гарного дня!.
Вид обєкта: Новобудова;
Тип будинку: Житловий фонд від 2021 р.;
Тип угоди: Банківський кредит;
Тип стін: Газоблок;
Клас житла: Комфорт;
Планування: Роздільна;
Cанвузол: Суміжний;
Опалення: Власна котельня;
Меблювання: Ні;
Побутова техніка: Без побутової техніки;
Мультимедіа: Без мультимедіа;
Комунікації: Вивіз відходів, Центральна каналізація, Каналізація септик, Електрика, Асфальтована дорога, Центральний водопровід;
Інфраструктура (до 500 метрів): Школа, Аптека, Лікарня, поліклініка, Магазин, кіоск, Дитячий садок, Метро, Супермаркет, ТРЦ, Парк, зелена зона, Зупинка транспорту, Дитячий майданчик, Відділення банку, банкомат, Відділення пошти, Кінотеатр, театр, Ресторан, кафе;
Ландшафт (до 1 км.): Парк, Пагорби;