Продається квартира Київ, Солом'янський, Генерала Шаповала вул. (Механізаторів),, 2, м. Вокзальна (№ 213-044-633)

Ціна: 98 900 $
Характеристики
Ціна: | 98 900 $ |
---|---|
№ об'єкта: | 213-044-633 |
Кімнат: | 1 |
Поверх: | 4 / 25 |
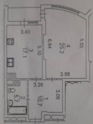
Площа: | 60.4 / 17.1 / 25.2 м? м2 |
Є-Оселя: | - |
Є-Відновлення: | - |
Власник: | - |
Ексклюзив: | - |
Адреса: Київ, Солом'янський, Генерала Шаповала вул. (Механізаторів),, 2, м. Вокзальна
Продається стильна 1-кімнатна квартира в ЖК “Смарагдовий”! ? Ідеальне поєднання комфорту, безпеки та сучасного стилю життя у престижному районі Києва! ? РОЗТАШУВАННЯ: ЖК “Смарагдовий” розташований у зручному місці з розвиненою інфраструктурою та комфортними умовами для проживання. Поруч Солом’янський парк, фітнес-центр із басейном та розважальний центр “Ультрамарин”. ОСНОВНІ ХАРАКТЕРИСТИКИ КВАРТИРИ: Площа: 60,4 м?
Поверх: 4-й
Тип будинку: моноліт, перекриття — залізобетон
Висота стелі: 3 м для ще більшого простору
Ліфти: 3 швидкісні ліфти для вашого комфорту ПЛАНУВАННЯ:
Окрема спальня з виходом на балкон — чудове місце для відпочинку!
Простора кухня-вітальня ідеально підходить для приємних вечорів із друзями та родиною. ПЕРЕВАГИ ЖК:
Закрита територія з професійною охороною, що забезпечує безпеку мешканців
Підземний паркінг та гараж на території для зручного зберігання автомобіля
Власна паркова зона, дитячий майданчик, супермаркет, аптека, банк — все необхідне буквально під рукою! КОМУНІКАЦІЇ ТА ТЕХНІЧНІ ДЕТАЛІ:
В квартирі залишається вся побутова техніка та меблі (холодильник, пральна машина, бойлер, посудомийна машина, телевізор, варильна поверхня та духова шафа, мікрохвильова піч, кондиціонери)
Підключені всі необхідні комунікації: електрика, вода, опалення Ця квартира — ідеальний вибір для тих, хто цінує комфорт та безпеку в сучасному темпі життя.