Продається квартира Київ, Голосіївський, Голосіївсський, 100/2 (№ 213-044-552)

Ціна: 53 000 $
Характеристики
Ціна: | 53 000 $ |
---|---|
№ об'єкта: | 213-044-552 |
Кімнат: | 1 |
Поверх: | 6 / 7 |
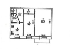
Площа: | 46 / - / 7 м2 |
Є-Оселя: | - |
Є-Відновлення: | + |
Власник: | - |
Ексклюзив: | - |
Адреса: Київ, Голосіївський, Голосіївсський, 100/2
2к квартира , м Голосіївська 10 хв пішки, пр-т Голосіївсський 100u002F2.
Продаж 2к квартири за адресою пр-т Голосіївський 100u002F2 в цегляному 8 ми поверховому будинку, не торцева, . Квартира з функціональним плануванням, роздільні кімнати та простора кухня. Квартира з частковим ремонтом, Кухня та санвузли- все замінено, потребує ремонту коридор і одна кімната, частково мебльована та облаштована побутовою технікою. Поруч з будинком добре розвинена інфраструктура, поряд багато шкіл та дитячих садків, магазинів та місць для відпочинку, вид на Голосіївський парк, метро Васильківська та Голосіївська в 10 хв. пішки..
Вид обєкта: Вторинний ринок;
Тип стін: Цегляний;
Меблювання: Так;