Продається квартира Київ, Шевченківський (№ 213-037-641)

Ціна: 125 000 $
Характеристики
Ціна: | 125 000 $ |
---|---|
№ об'єкта: | 213-037-641 |
Кімнат: | 1 |
Поверх: | 3 / 4 |
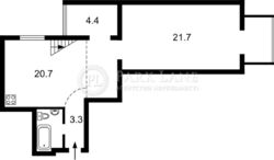
Площа: | 54.6 / 22 / 21 м? м2 |
Є-Оселя: | - |
Є-Відновлення: | - |
Власник: | - |
Ексклюзив: | - |
Адреса: Київ, Шевченківський
Велика Житомирська вул., 34
Предлагается 2к квартира по адресу ул. Большая Житомирская 34 – фасадный дореволюционный дом, расположенный в историческом сердце Киева. Квартира находится на комфортном 3м этаже, есть лифт.
Высота потолков 4.25 м.
В доме ж/б перекрытия. Отличное расположение, рядом: Львовская Площадь, Пейзажная аллея, Софиевская Площадь, Золотые ВоротаОперный Театр, множество посольств вокруг. Отличное место как для жизни, так и для арендного бизнеса.
Дореволюційний
Задовільний стан