Продається квартира Київ, Дарницький, Причальна вул., 12 (№ 213-036-939)

Ціна: 90 000 $
Характеристики
Ціна: | 90 000 $ |
---|---|
№ об'єкта: | 213-036-939 |
Кімнат: | 2 |
Поверх: | 9 / 26 |
Площа: | 71 / 30 / 23 м? м2 |
Є-Оселя: | + |
Є-Відновлення: | - |
Власник: | - |
Ексклюзив: | - |
Адреса: Київ, Дарницький, Причальна вул., 12
Лівий берег Продаж 2-х кімнатної квартири в ЖК Грейт. Будинок 12
Поверх 9
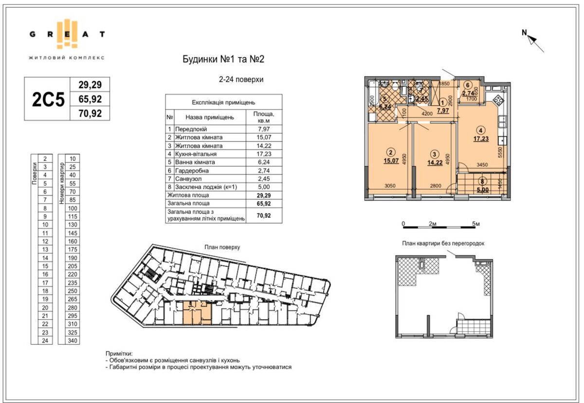
Площа 71м2
Планування 2с5 В цій квартирі зійшлось все, що ви шукали:
Оптимальний 9-й поверх Друга лінія - вам не буде відомо, що таке шум та вихлопи від автомобілів. Вид на Дніпро. Ідеальне планування - ніяких величезних коридорів, максимальна житлова площа.
І найпопулярніший комплекс на лівому березі.
Бетонно монолітний
Від будівельників (з обробкою)