Продається квартира Київ, Подільський (№ 213-032-558)

Ціна: 74 000 $
Характеристики
Ціна: | 74 000 $ |
---|---|
№ об'єкта: | 213-032-558 |
Кімнат: | 2 |
Поверх: | 10 / 25 |
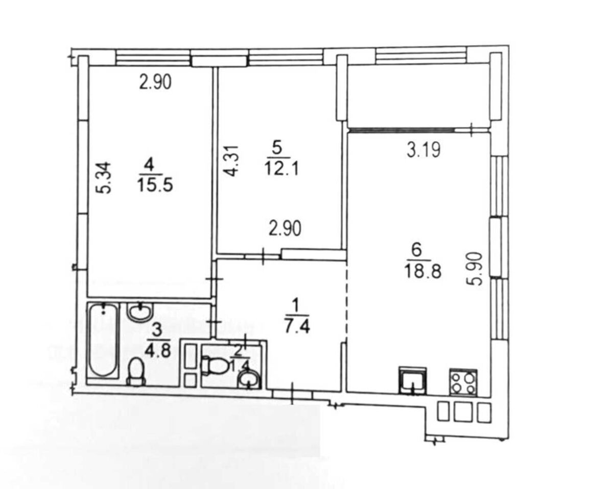
Площа: | 64 / - / 19 м2 |
Є-Оселя: | - |
Є-Відновлення: | - |
Власник: | - |
Ексклюзив: | + |
Адреса: Київ, Подільський
Велика видова 2 кімнатна квартира в ЖК Варшавський плюс.
Простора світла квартира, є відео огляд звертайтеся! Проспект Європейського союзу 53u002F46, будинок 13.7, 10 поверх 25 поверхового будинку. Будинок зданий у 2022 році. Загальна площа 64 м2, кухня 19 м2, кімнати 12 і 15, 5 м2, роздільний санвузол, засклена лоджія. Квартира у стані після забудовників: встановлені вікна Rehau, радіатори опалення, броньовані вхідні двері, індивідуальні лічильники на електрику, тепло, гарячу і холодну воду, заведена електрика до щитка, на підлозі лазерна стяжка. Будинок має власну котельню. Ведеться відеоспостереження, є консьєрж. ЖК з внутрішнім двором, вхід тільки з будинків, для мешканців. Поряд уся необхідна інфраструктура, школи, садочки, ТЦ Ретровіль з супермаркетами, магазинами, фітнес-центром, ресторанами, парк з озером, зручна транспортна розвязка. Податки сплачує покупець. Телефонуйте, пишіть, відповім на всі запитання, організуємо перегляд!.
Вид обєкта: Вторинний ринок;
Тип будинку: Житловий фонд від 2021 р.;
Назва ЖК: Варшавський плюс;
Планування: Роздільна;
Cанвузол: Роздільний;
Опалення: Власна котельня;