Продається квартира Київ, Дарницький, Ващенка, 5 (№ 213-029-037)

Ціна: 52 500 $
Характеристики
Ціна: | 52 500 $ |
---|---|
№ об'єкта: | 213-029-037 |
Кімнат: | 1 |
Поверх: | 20 / 20 |
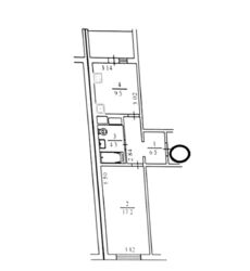
Площа: | 39.9 / 17.2 / 9.5 м? м2 |
Є-Оселя: | - |
Є-Відновлення: | - |
Власник: | + |
Ексклюзив: | + |
Адреса: Київ, Дарницький, Ващенка, 5
Продаж 1 кімнатна квартира у ЖК Молодіжний квартал, Осокорки за адрсою: Ващенко буд. 5. Будинок 2014 року, стіни залізобетоні, утеплена панель мін. ватою. Загальна площа: 39,9 кв. м. житлова площа 17,2, а кухні 9,5 кв. м. на 20 поверсі. Косметичний ремонт від забудовника. Квартира в житловому стані. Продаж з меблями і побутовою технікою. В квартирі є ліжко, шафа, кондиціонер, Кухня мебльована, електрична плита, холодильник, балкон не засклений.