Продається квартира Київ, Голосіївський (№ 213-001-740)

Ціна: 164 000 $
Характеристики
Ціна: | 164 000 $ |
---|---|
№ об'єкта: | 213-001-740 |
Кімнат: | 1 |
Поверх: | 7 / 10 |
Площа: | 76 / - / 20 м2 |
Є-Оселя: | - |
Є-Відновлення: | - |
Власник: | + |
Ексклюзив: | + |
Адреса: Київ, Голосіївський
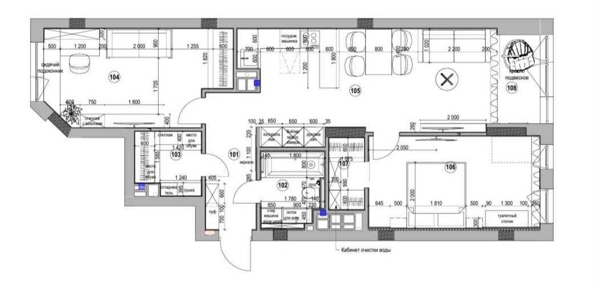
Є-оселя 3х к. з початим ремонтом + дизайном ЖК Республіка (Respublika), Пропонується на продаж 3-кімнатна квартира в ЖК 'Республіка': складається з просторої кухні вітальні, 2-х спалень, 2-х гардеробних кімнат, 2-х санвузів. Будинок введено в експлуатацію є право власності, розглянемо продаж через державні програми Є-оселя, відновлення і інші. Гарний краєвид з вікон (фото реальні), панорамні вікна та засклена лоджія. Загальна площа квартири: 75,8 кв.м. Початий ремонт: + зроблений стильний дизайнерський проєкт + розведена мідна проводка + зробляна якісна штукатурка (готова основа для дикоративного, чистового оздоблення) + розведені труби (готово для кладки плитки) + прокладені траси для кондиціонерів + куплені 3 кондиціонери C&H, інверторні! + купленна плитка по дизайн проєкту Поруч метро, великий торговий центр 'Республіка', 'Епіцентр', 'Metro', 'Столичний ринок'. На території комплексу перші поверхи передбачено під комерцію. Монолітно-каркасний будинок утеплений мін-ватою. ЖК 'Республіка' має закриту територію з відеоспостереженням та охороною за периметром. У підїзді облаштовано місце під коляску, велосипеди. Архітектура ЖК європейського зразка, з великим променадом та гарним ландшафтом. Комплекс, площею 110 гектарів, збудовано за принципом місто у місті. На території дитячий садок, школа, фітнес-клуб, тенісний корт, баскетбольні майданчики, футбольне поле, спортивні майданчики облаштовані тренажерами, барбекю-зони, зони для спорту та розваг, дитячий садок та школу 'Академія А+'. У пішій доступності, 3 хв, торговий центр 'Республіка', де численні магазини та кафе. Метро Теремки 7 хв пішого ходу. До центру Києва 30 хв. на авто і 50 хв. на метро. ЖК ,,RESPUBLIKA' комплекс, де мрії стають реальністю!!)