Продається квартира Київ, Шевченківський (№ 213-001-721)

Ціна: 98 735 $
Характеристики
Ціна: | 98 735 $ |
---|---|
№ об'єкта: | 213-001-721 |
Кімнат: | 1 |
Поверх: | 7 / 8 |
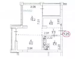
Площа: | 40 / - / 9 м2 |
Є-Оселя: | + |
Є-Відновлення: | - |
Власник: | + |
Ексклюзив: | + |
Адреса: Київ, Шевченківський
Unit Home
розташована на 7 поверсі сучасного житлового комплексу Unit Home, площею 40,3 кв.м, житлова - 15,2 кв.м. Квартира з великими панорамними вікнами від підлоги до стелі, з яких відкривається чудовий вид на місто та які наповнюють простір природним світлом. Основні особливості: - Стан після будівельників: квартира готова до індивідуального оздоблення, що дозволяє спроектувати свій ідеальний простір. - Інноваційна інфраструктура: Розташована в інноваційному парку Unit City, ця квартира є частиною екосистеми Unit City. Резиденти мають доступ до коворкінгів, фітнес-центрів, кафе та ресторанів, що робить його ідеальним місцем для молодих підприємців і IT спеціалістів. Ідеальне розташування: Зручна транспортну розв?язку, паркінг і доступність до громадського транспорту. Про Unit City: Unit Home є частиною візіонерського проєкту Unit City - інноваційного парку, створеного для розвитку стартапів, ІТ-спеціалістів та креативного бізнесу. Простір і концепція Unit city та Unit Home дає підприємцям і молодим спеціалістам можливість знайти однодумців і завести знайомства.