Продається квартира Київ, Оболонський, Рокосовського, 10а (№ 212-996-546)

Ціна: 34 500 $
Характеристики
Ціна: | 34 500 $ |
---|---|
№ об'єкта: | 212-996-546 |
Кімнат: | 1 |
Поверх: | 8 / 9 |
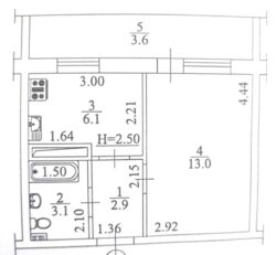
Площа: | 29 / - / 6 м2 |
Є-Оселя: | - |
Є-Відновлення: | - |
Власник: | + |
Ексклюзив: | + |
Адреса: Київ, Оболонський, Рокосовського, 10а
1 кім. квартира в Києві , можливо під сертифікат.
продам 1 кім. квартиру (гостинка) гарне планування, простора кімната, досить велика кухня, лоджія на всю квартиру, гарний вид з вікна в двір, далеко від проїзджої частини. Гарний район поряд з площею Шевченка. Чудовий транспортний розвязок та інфраструктура. Квартира у власності більше 3-х років, а це означає що витрати на оформлення мінімвльні. Можливий продаж під програми є-відновлення (житловий сертифікат).
Вид обєкта: Вторинний ринок;
Тип будинку: Житловий фонд 80-90-і;
Тип стін: Цегляний;
Планування: Роздільна;
Cанвузол: Суміжний;
Опалення: Централізоване;
Ремонт: Косметичний ремонт;
Побутова техніка: Без побутової техніки, Плита;
Комунікації: Вивіз відходів, Газ, Центральна каналізація, Центральний водопровід, Електрика;
Інфраструктура (до 500 метрів): Дитячий майданчик, Аптека, Магазин, кіоск, Парк, зелена зона, Відділення банку, банкомат, Школа, Ринок, Дитячий садок, Відділення пошти, Лікарня, поліклініка;