Продається квартира Київ, Подільський (№ 212-996-167)

Ціна: 54 500 $
Характеристики
Ціна: | 54 500 $ |
---|---|
№ об'єкта: | 212-996-167 |
Кімнат: | 1 |
Поверх: | 5 / 12 |
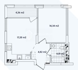
Площа: | 45 / - / 18 м2 |
Є-Оселя: | - |
Є-Відновлення: | - |
Власник: | + |
Ексклюзив: | + |
Адреса: Київ, Подільський
ЖК «Варшавский-2» 45 кв. буд 10.1.
Продаж однокімнатної квартири на 5 поверсі в сучасному ЖК ,,Варшавський-2,, від надійного забудовника Stolitsa Group в Подільському р-ні. Будинок 10.1 введений в експлуатацію. Квартира загальною площею 45 кв.м., має функціональне планування, окрему спальню,балкон. В квартирі встановлено: вікна Rehau, радіатори опалення, броньовані вхідні двері, індивідуальні лічильник, заведена електрика до щитка, на підлозі лазерна стяжка. Власна котельня. ЖК «Варшавський-2» -внутрішній двір закритий від сторонніх. Цілодобова охорона будинку відеоспостереження, консьєрж. Відмінно розвинена інфраструктура: магазини, аптеки, ТЦ Retroville, ресторани і кафе, школи, дитячі садки, фітнес-клуби, салони краси, парк з озером та ліс для активного відпочинку на природі, що так необхідно для комфортного життя. Зручна транспортна розвязка..
Вид обєкта: Новобудова;
Назва ЖК: ЖК Варшавский-2;
Ремонт: Після будівельників;