Продається квартира Київ, Солом'янський (№ 212-987-787)

Ціна: 87 000 $
Характеристики
Ціна: | 87 000 $ |
---|---|
№ об'єкта: | 212-987-787 |
Кімнат: | 1 |
Поверх: | 20 / 24 |
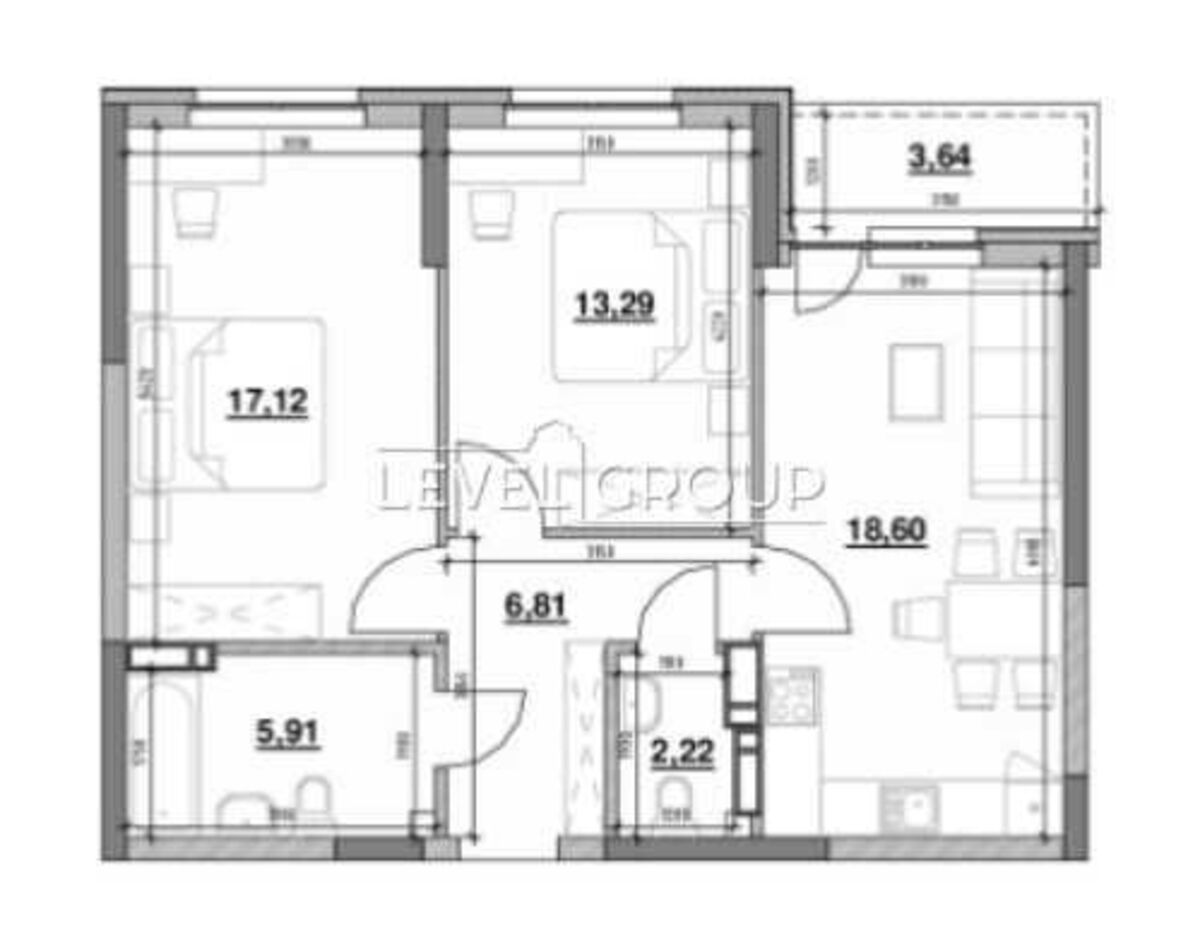
Площа: | 67 / - / 18 м2 |
Є-Оселя: | - |
Є-Відновлення: | - |
Власник: | + |
Ексклюзив: | + |
Адреса: Київ, Солом'янський
Двохкімнатна квартира в ЖК OkLand на Соломянці, Севастопольська площа. просп. Повітрофлотський 56. 3-й будинок(1 черга), 3-а секція. Поверх 20 з 24. Загальна площа - 67.7м2, житлова - 31 м2, кухня-вітальня - 18.6м2. Документи на руках, податки по занижній платимо. Вид із вікон у двір. Стан від забудовника: на підлозі лазерна стяжка, встановлені панорамні вікна, радіатори, вхідні двері, лічильники на все, пожежна сигналізація. Встановлено систему енергозберігаючих квартир. Будинок монолітно-каркасний, утеплений мінеральною ватою, в квартирі встановлені вхідні двері, вікна, опалення в ЖК автономне, розведене по квартирі, встановлені радіатори, лічильники на воду, світло, тепло, від забудовника Ajax хаб, корзини під кондиціонери. Є можливість придбати підземний паркінг. У дворі 1 черги дитячі та спортивні майданчики, настільний теніс, зелені зони для відпочинку. В радіусі 1-2 км декілька садочків №714, №376, шкіл №69, №64, школа-садочок Словяночка, ліцей та гімназія Міленіум, музична школа №33, коледж та вищі навчальні заклади. Супермаркети, аптеки, заправки, Приватбанк, Нова Пошта, Укрпошта, кафеu002Fресторани, ринок, лікарня Добробут Багато маленьких скверів та парк ім. Островського в 1,5км від ЖК. Гарна траспортна розязка, багато наземного транспорту будь-куди, до метро Вокзальна 20хв, до центру на машині 15хв. ЖК OKLAND, ЖК Окленд, ЖК Окланд, Повітрофлотський, Повітряних Сил України.