Продається квартира Київ, Солом'янський, Олекси Тихого 80/17 (вул. Виборзька), м. Шулявська (№ 212-987-267)

Ціна: 56 000 $
Характеристики
Ціна: | 56 000 $ |
---|---|
№ об'єкта: | 212-987-267 |
Кімнат: | 1 |
Поверх: | 3 / 5 |
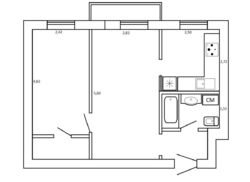
Площа: | 42 / - / 7 м2 |
Є-Оселя: | - |
Є-Відновлення: | - |
Власник: | + |
Ексклюзив: | + |
Адреса: Київ, Солом'янський, Олекси Тихого 80/17 (вул. Виборзька), м. Шулявська
Поряд: метро Шулявська (дві зупинки), вул. Гетьмана, Індустріальний міст, Політехнічний університет, парк КПІ, парк Орлятко, ТЦ Космополіт, ТЦ Аркадія, ТЦ Мармелад, відділення Нової пошти в будинку, відділення ПриватБанку, біля будинку зупинка маршрутки. - 3u002F5 поверх - теплий цегляний будинок - квартира не кутова - вікна у палісадник - загальна площа 42 м.кв - 2 кімнати - кухня 7 м.кв. - кухонні меблі Мerx, вбудована техніка Ariston, на кухні є витяжна шафа та телевізор - санвузол сумісний , санітарний душ та місце під пральну машину - боляр - засклений балкон - паркет з червонного дерева - мідна проводка та мідні водопровідні труби - кондиціонер - гардеробна - затишне місце, з добре розвинутою інфраструктурою - великий зелений двір (не прохідний) - парковка у дворі, - дитячий майданчик, - у дворі бювет Еталон, - поруч не гудуть генератори - в блекаут є газ і вода -
Вид обєкта: Вторинний ринок;
Тип будинку: Хрущовка;
Тип стін: Цегляний;
Клас житла: Комфорт;
Планування: Суміжна, прохідна;
Cанвузол: Суміжний;
Опалення: Централізоване;
Ремонт: Євроремонт;
Меблювання: Так;
Побутова техніка: Холодильник, Варильна панель, Духова шафа;
Комфорт: Меблі на кухні, Ванна, Балкон, лоджія, Кондиціонер, Госп. приміщення, комора;
Комунікації: Електрика, Газ, Асфальтована дорога, Центральний водопровід, Центральна каналізація;
Інфраструктура (до 500 метрів): Відділення пошти, Центр міста, Магазин, кіоск, Дитячий майданчик, Дитячий садок, Кінотеатр, театр, Школа, Парк, зелена зона, Лікарня, поліклініка, Відділення банку, банкомат, Зупинка транспорту, Ресторан, кафе, Метро, Аптека, Супермаркет, ТРЦ;