Продається квартира Київ, Голосіївський (№ 212-985-675)

Ціна: 121 860 $
Характеристики
Ціна: | 121 860 $ |
---|---|
№ об'єкта: | 212-985-675 |
Кімнат: | 1 |
Поверх: | 2 / 9 |
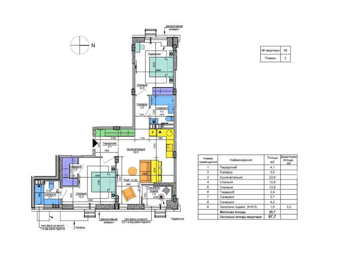
Площа: | 67 / - / 22 м2 |
Є-Оселя: | - |
Є-Відновлення: | - |
Власник: | + |
Ексклюзив: | + |
Адреса: Київ, Голосіївський
Продаж двокімнатної квартири у внутрішній двір ЖК Respublika!.
Простора двокімнатна квартира з великою кухнею-вітальнею! В зоні передпокою передбачена ніша для гардеробу та вхід у кухню-вітальню, яка має площу 22,6м2! Для теплих родинних зустрічей, або посиденьок в колі друзів. За плануванням квартира має дві спальні, в одній з яких передбачений власний санвузол та місце для гардеробної. KAN MARKET Загальна площа: 67,7 м2 Кухня - вітальня: 22,6 м2 Житлова площа: 25,7 м2 Стан: без ремонту Квартира розташована на 2-му поверсі Ціна - 1800$u002Fм2 Загальна вартість - 121860$ Записуйся на консультацію, щоб отримати всю додаткову інформацію! З любов’ю, Ваш KANMarket