Продається квартира Київ, Дарницький, Вишняківська, 13А (№ 212-978-050)

Ціна: 79 000 $
Характеристики
Ціна: | 79 000 $ |
---|---|
№ об'єкта: | 212-978-050 |
Кімнат: | 1 |
Поверх: | 6 / 14 |
Площа: | 70 / - / 15 м2 |
Є-Оселя: | - |
Є-Відновлення: | - |
Власник: | + |
Ексклюзив: | + |
Адреса: Київ, Дарницький, Вишняківська, 13А
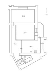
Продаж двокімнатної квартири Вишняківська 13А.
Спецпроект Київміськбуду 2001 ріку (моноліт-каркас-цегла). 6 поверх 14 поверхового будинку. Площа 70.4 м2, Н=2.8м Тепла простора двокімнатна квартира. В доброму стані, місцями потребує косметичного ремонту. Вікна на сквер. Засклена лоджія. Санвузли окремі. Лічильники на воду, в планах - на отоплення. Два ліфти (вантажний та пасажирський). Будинок обслуговується ОСББ. Під?їзд доглянутий, консьєрж. Зручне розташування, віддалене від шумних доріг, водночас поблизу багатьох супермаркетів, ТЦ, салонів, банків, шкіл, садків. До метро Харківська або Позняки 10-15 хв. пішки (відстань 1-1,2 км).