Продається квартира Київ, Солом'янський, Липківского Василя вул. (Урицького), 26, м. Вокзальна (№ 212-962-044)

Ціна: 73 000 $
Характеристики
Ціна: | 73 000 $ |
---|---|
№ об'єкта: | 212-962-044 |
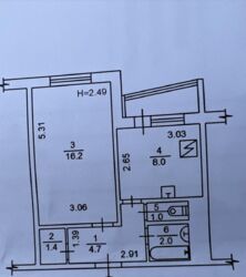
Кімнат: | 1 розд |
Поверх: | 7 / 16 |
Площа: | 36 / 16 / 8 м? м2 |
Є-Оселя: | - |
Є-Відновлення: | - |
Власник: | + |
Ексклюзив: | + |
Адреса: Київ, Солом'янський, Липківского Василя вул. (Урицького), 26, м. Вокзальна
1к квартира на Соломʼянці. Будинок . БПС серії. Капитальний ремонт в світлих тонах. Підлога - кахель, ламінат. Стіни - шпалери. Санвузол в кахлі. Квартира укомплектована всими необхідними меблями і технікою: вбудована кухня, холодильник, пральна машина, шафа, диван, телевізор, кондиціонер, бойлер та ін. Просторий, засклений балкон. Є окрема гардеробна. Будинок з двома ліфтами, хорошим, облаштованим двором. Поряд ТРЦ, Новус, безліч магазинів, кафе та ін. Хороша транспортна розв‘язка. До метро 15 хвилин пішки.