Продається квартира Київ, Дарницький (№ 212-961-805)

Ціна: 113 000 $
Характеристики
Ціна: | 113 000 $ |
---|---|
№ об'єкта: | 212-961-805 |
Кімнат: | 3 |
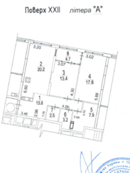
Поверх: | 20 / 26 |
Площа: | 84 / 40 / 20.2 м м2 |
Є-Оселя: | + |
Є-Відновлення: | - |
Власник: | + |
Ексклюзив: | + |
Адреса: Київ, Дарницький
Дніпровська наб., 15ж
ЖК Грейт, будинок 4, частково вид на Дніпро
22 поверх, квартира після будівельників, площа квартири 84 м2, вдале планування , є варіанти перепланування та вибір поверху.
вул. Дніпровська Набережна 15ж. Квартира простора, затишна, з гарним видом із вікон. Будинок з утепленням з мінеральної вати. В будинку є генератор, консєрж , відеоспростереження . Підземний і наземний паркінги . Навколо будинку спортивні та дитячі майданчики, прогулянкові алеї. На теритоії ЖК Грейт передбачено все необхідне: магазини, аптеки, затишні кафе ,зони відпочинку. Через дорогу Дніпро, з розважальними закладами. Поруч гімназії, перукарні супермаркети, дитячи садочки ,школи. До меторо Осокорки 15 хвилин пішки, поруч автобусні зупинки.