Продається квартира Київ, Шевченківський, Юрія Глушка вул. (Подвойського), 9а (№ 212-949-725)

Ціна: 69 000 $
Характеристики
Ціна: | 69 000 $ |
---|---|
№ об'єкта: | 212-949-725 |
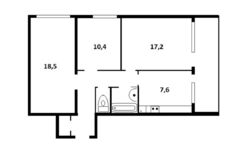
Кімнат: | 3 |
Поверх: | 8 / 16 |
Площа: | 71 / 47 / 8 м? м2 |
Є-Оселя: | - |
Є-Відновлення: | - |
Власник: | + |
Ексклюзив: | + |
Адреса: Київ, Шевченківський, Юрія Глушка вул. (Подвойського), 9а
Юрія Глушка вул. (Подвойського), 9а
Продам повноцінну 3-кімнатну квартиру в одному з найкомфортніших районів міста! Поруч декілька великих парки, дві станції метро Сирець і Дорогожичі. квартира в житловому стані, але більше під ремонт. Три окремі кімнати, роздільний санвузол, велика лоджія, чудовий краєвид з вікна. Будинок цегляний під'їзд в гарному стані, два ліфти.