Продається квартира Київ, Голосіївський (№ 212-941-951)

Ціна: 95 000 $
Характеристики
Ціна: | 95 000 $ |
---|---|
№ об'єкта: | 212-941-951 |
Кімнат: | 1 |
Поверх: | 7 / 14 |
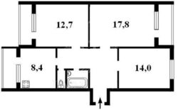
Площа: | 77 / - / 8 м2 |
Є-Оселя: | - |
Є-Відновлення: | + |
Власник: | + |
Ексклюзив: | + |
Адреса: Київ, Голосіївський
3 кімн. 77 кв.м вул. Феодосійська, 8, Голосіївський, БЕЗ% 3 кімн. 77 кв.м., вул. Феодосійська, 8, Голосіївський р-он 77u002F44u002F8- кв.м., 7u002F14 пов. Серія - Т4 Двостороння квартира, роздільні кімнати, величезний хол. Сучасний якісний ремонт, паркет, засліплені три лоджії. Вбудована кухня з технікою, три окремі кімнати з меблями. Хол із вбудованою шафою. Обладнаний санвузол, душ-кабіна, бойлер. Гарний вид на природу і місто. Чистий, акуратний підїзд, домофон.