Продається квартира Київ, Голосіївський (№ 212-914-172)

Ціна: 170 000 $
Характеристики
Ціна: | 170 000 $ |
---|---|
№ об'єкта: | 212-914-172 |
Кімнат: | 3 |
Поверх: | 14 / 17 |
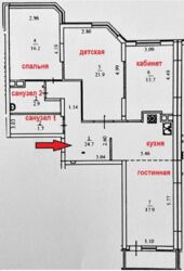
Площа: | 100.9 / 53.5 / 23.3 м? м2 |
Є-Оселя: | - |
Є-Відновлення: | + |
Власник: | + |
Ексклюзив: | + |
Адреса: Київ, Голосіївський
Юлії Здановської вул. (Ломоносова), 46/1
Продам квартиру в Голосіївському районі Києва. Житловий комплекс Ліко Град, 2017 року побудови. Вулиця Юлії Здановської (Ломоносова), 46/1 Поруч вулиці: Симоненка, Мейтуса, Академіка Вільямса, Маршала Конєва Житлові комплекси мікрорайону: Венеція, Сонячна Брама, Успішний квартал, Евріка Метро Васильківська, Іподром, Виставковий центр в пішій доступності Квартира дійсно сонячна та тепла. Комфортне планування простору: три роздільні кімнати та кухня-гостьова. Меблі та побутова техніка залишаються новим власникам. Ремонт робили шість років назад ТЕХНІЧНА ІНФОРМАЦІЯ • Загальна площа: 100.9m2 • Кількість роздільних кімнат: 3 • Вбиральні (санвузли): 2 • Поверх: 14-й з 16-ти • Лічильники: тепла, води • Парковка: підземна (паркінг), гостьова
Роздільне
Євроремонт