Продається квартира Київ, Голосіївський, Бурмістренка (№ 212-909-109)

Ціна: 75 000 $
Характеристики
Ціна: | 75 000 $ |
---|---|
№ об'єкта: | 212-909-109 |
Кімнат: | 1 |
Поверх: | 3 / 10 |
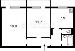
Площа: | 51 / - / 8 м2 |
Є-Оселя: | - |
Є-Відновлення: | + |
Власник: | + |
Ексклюзив: | + |
Адреса: Київ, Голосіївський, Бурмістренка
2 кім (51 м2) на Бурмістренка! Голосіївська 8 хвилин!, Згодні на продаж за держпрограмою! (розрахунок в гривні можливий) Затишна 2 кім квартира з вдалим плануванням на Бурмістренка 12. Всього 10 хвилин від метро Голосіївська пішки. Одностороннє планування, дві роздільні кімнати, якісний ремонт 2007 року. Вбудована техніка на кухні, Якісна столярка з натурального дерева - дуб. На підлозі ламінат. Санвузол з бойлером, є лічильники. В коридорі дві шафи. Чисте парадне, один ліфт. Поруч магазини ' АТБ', 'Фора', 'Велика кишеня', 'Варус', 5 хв.пішки до ст.М'Васильківська', Голосіївський парк ім.Максима Рильського..
Вид обєкта: Вторинний ринок;
Тип стін: Панельний;
Клас житла: Комфорт;
Cанвузол: Роздільний;
Опалення: Централізоване;
Меблювання: Так;
Побутова техніка: Варильна панель, Духова шафа, Холодильник;
Мультимедіа: Швидкісний інтернет, Телевізор, Кабельне, цифрове ТБ;
Комунікації: Газ, Центральний водопровід, Електрика, Вивіз відходів, Асфальтована дорога;
Інфраструктура (до 500 метрів): Дитячий садок, Школа, Зупинка транспорту, Метро, Парк, зелена зона;
Ландшафт (до 1 км.): Парк;