Продається квартира Київ, Голосіївський (№ 212-908-034)

Ціна: 123 240 $
Характеристики
Ціна: | 123 240 $ |
---|---|
№ об'єкта: | 212-908-034 |
Кімнат: | 2 |
Поверх: | 5 / 8 |
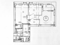
Площа: | 63 / 35 / 17 м? м2 |
Є-Оселя: | - |
Є-Відновлення: | + |
Власник: | + |
Ексклюзив: | + |
Адреса: Київ, Голосіївський
Тадея Рильського бульв., 4
Продам двосторонню світлу двокімнатну квартиру з великою лоджією під чистове оздоблення в ЖК Республіка / Respublika, що знаходиться в Голосіївському районі Києва, в 5 хвилинах пішки від М Теремки. Будинок №25 у 8 черзі за адресою бульвар Тадея Рильського 4 введено в експлуатацію, мешканці активно роблять ремонти. Квартира знаходиться на середньому 5-му поверсі, що безпечно і водночас зручно, так як на поверх можна з легкістю піднятися сходами. Завдяки вигідному двосторонньому розташуванню у квартиру потрапляє багато природнього світла. А з вікон відкривається чудовий вид на ТРЦ та променад. Одне з кращих планувань у комплексі включає: - гостьовий санвузол;
- кухню-студію;
- першу спальню/дитячу;
- основний санвузол;
- мастер-спальню з виходом на лоджію. ІНФРАСТРУКТУРА Особливістю даного комплексу є закрита прибудинкова територія, яка включає дитячі та спортивні майданчики, паркові зони відпочинку. Посередині розміщується «Publik Сentre» – зона відпочинку і громадський центр з унікальним ландшафтним дизайном. За американським зразком організовується «Академія спорту», ??в якій можна пограти в волейбол, баскетбол, футбол і Paddle-Tennis, тренуватися в TRX-зонах, користуватися душовими, вбиральнями. Якщо є бажання, то можна взяти напрокат спортивний інвентар або велосипед. Консьєрж-центр, керуюча компанія та внутрішня служба охорони забезпечують високий рівень сервісу та безпеки. Неподалік від ЖК є зручний виїзд на Кільцеву дорогу і проспект Академіка Глушкова. Поблизу пролягають не менше двох десятків маршрутів наземного транспорту, а до станції метро йти кілька хвилин.