Продається квартира Київ, Святошинський, Мрії (Академіка Туполєва) 11В (№ 212-901-969)

Ціна: 63 000 $
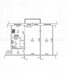
Характеристики
Ціна: | 63 000 $ |
---|---|
№ об'єкта: | 212-901-969 |
Кімнат: | 2 |
Поверх: | 3 / 5 |
Площа: | 45 / - / 6 м2 |
Є-Оселя: | - |
Є-Відновлення: | + |
Власник: | + |
Ексклюзив: | + |
Адреса: Київ, Святошинський, Мрії (Академіка Туполєва) 11В
Затишна, тепла, світла 2к квартира в Святошинському районі, вул. Мрії ( Академіка Туполєва) 11В. В квартирі виконаний якісний ремонт з екологічних матеріалів: дерев?яні міжкімнатні двері, дерев?яна підлога, повністю замінена електрична проводка та сантехніка. Італійські дерев?яні меблі, техніка світових брендів, все залишається новому власнику! Раціонально планування: Окрема спальня 13,1м2 Зонована кухня 6,1м2 Вітальня 17,2м2 Санвузол суміжний 3,9м2 є підігрів підлоги. Балкон засклений. Квартира внутрішня та тепла.
Вид обєкта: Вторинний ринок;
Тип будинку: Хрущовка;
Тип стін: Панельний;
Планування: Суміжна, прохідна;
Cанвузол: Суміжний;
Опалення: Централізоване;
Ремонт: Євроремонт;
Меблювання: Так;
Побутова техніка: Плита, Духова шафа, Холодильник, Пральна машина;
Мультимедіа: Wi-Fi, Швидкісний інтернет, Телевізор;
Комфорт: Кондиціонер, Підігрів підлоги, Душова кабіна, Меблі на кухні, Балкон, лоджія, Паркувальне місце;
Комунікації: Газ, Центральний водопровід, Електрика, Центральна каналізація, Вивіз відходів, Асфальтована дорога;
Інфраструктура (до 500 метрів): Дитячий садок, Школа, Зупинка транспорту, Ринок, Магазин, кіоск, Супермаркет, ТРЦ, Парк, зелена зона, Дитячий майданчик, Аптека, Відділення пошти, Відділення банку, банкомат;
Ландшафт (до 1 км.): Парк;