Продається квартира Київ, Шевченківський, Костянтинівська, 45, м. Тараса Шевченка (№ 212-892-363)

Ціна: 88 000 $
Характеристики
Ціна: | 88 000 $ |
---|---|
№ об'єкта: | 212-892-363 |
Кімнат: | 2 |
Поверх: | 7 / 9 |
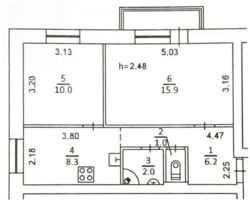
Площа: | 45 / - / 8 м2 |
Є-Оселя: | - |
Є-Відновлення: | + |
Власник: | + |
Ексклюзив: | + |
Адреса: Київ, Шевченківський, Костянтинівська, 45, м. Тараса Шевченка
Продаж 2-к, вул. Костянтинівская 45, Продається двокімнатна квартира в спокійному районі. Ремонт зроблений у 2016 році. У квартирі встановлені броньовані двері, домофон, сигналізація охорони, тепла підлога в санвузлі, кухні та вітальні, а також зовнішнє та внутрішнє утеплення. Балкон засклений. Проведено нову електропроводку, встановлено електричний бойлер, замінено труби опалення та водопостачання. У квартирі є газова плита, електрична духовка та холодильник. Поруч знаходиться станція метро 'Тараса Шевченка'. Район має розвинену інфраструктуру, супермаркети 'Сільпо' та 'АТБ', школи, дитячий садок навпроти, кафе та лікарні. Квартира знаходиться на сьомому поверсі девятиповерхового будинку, встановлено новий ліфт у 2023 році.