Продається квартира (№ 212-884-420)

Ціна: 146 000 $
Характеристики
Ціна: | 146 000 $ |
---|---|
№ об'єкта: | 212-884-420 |
Кімнат: | 2 |
Поверх: | 5 / 16 |
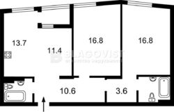
Площа: | 83 / - / 13 м2 |
Є-Оселя: | - |
Є-Відновлення: | + |
Власник: | + |
Ексклюзив: | + |
Продаж квартири 83м у ЖК Старт, Шолуденка 30, Адреса: Шолуденка, 30, ЖК'Старт', 1 будинок Параметри : 5 поверх, площа: 83,Особливості: Квартира сучасного ергономічного планування, панорамні вікна, сонячна сторона - вікна на вул. Шолуденка, 2 санвузли, після будівельників, з можливістю перепланування для дизайну. Локація: м. Лукянівська-8 хв пішки, поруч реконструюють історичний стадіон, також будується торгівельний центр.