Продається квартира Київ, Печерський (№ 212-880-443)

Ціна: 72 000 $
Характеристики
Ціна: | 72 000 $ |
---|---|
№ об'єкта: | 212-880-443 |
Кімнат: | 1 |
Поверх: | 8 / 9 |
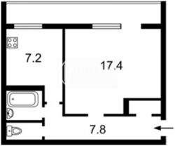
Площа: | 43 / 18 / 7 м? м2 |
Є-Оселя: | - |
Є-Відновлення: | + |
Власник: | + |
Ексклюзив: | + |
Адреса: Київ, Печерський
Михайла Омеляновича-Павленка вул. (Суворова), 18/20
Продаж 1 кімн квартири в центрі Києва, Печерськ
Квартира з просторою кімнатою, кухнею, роздільним с/в і дуже великою лоджією із видом на центр. Вікна у тихий двір.
Інфраструктура центрального району міста, поруч парки, Києво-Печерська Лавра, дві станції метро в пішій доступності Арсенальна та Печерська.
Роздільне
Задовільний стан