Продається квартира Київ, Дніпровський, Гетьмана Павла Полуботка вул. (Попудренка), 28, м. Дарниця (№ 212-875-653)

Ціна: 75 000 $
Характеристики
Ціна: | 75 000 $ |
---|---|
№ об'єкта: | 212-875-653 |
Кімнат: | 3 |
Поверх: | 5 / 5 |
Площа: | 60 / 45 / 12 м? м2 |
Є-Оселя: | - |
Є-Відновлення: | + |
Власник: | + |
Ексклюзив: | + |
Адреса: Київ, Дніпровський, Гетьмана Павла Полуботка вул. (Попудренка), 28, м. Дарниця
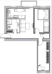
Планування квартири роздільне: дві окремі кімнати, кухня-студія, засклений балкон, суміжний санвузол із душевою У квартирі зроблено повний капітальний ремонт (2020 р. ) – за індивідуально розробленим проектом. Особливо хотілося б відзначити, що ВСІ будматеріали підбиралися, використовувалися тільки від сертифікованих, перевірених часом «брендових» виробників з урахуванням ЕКОЛОГІЧНОЇ відповідності, ремонт робили 'для себе', для сім'ї з маленькими дітьми. Усі роботи проводилися окремими профільними фахівцями (бригадами) високого класу, суворо за тех. правилами і без порушення норм, з дотриманням технологічної послідовності. Були винесені всі старі (крім несучих) стіни, заміна стяжки по всій площі, заміна всієї електропроводки (починаючи з вхідного кабелю до квартири! ), встановлено два тарифні лічильники (з 23. 00 до 6. 00 ранку) – 50% економія. Все розподілено на групи та за навантаженням. Додатково за електрикою: Інтернет заведений безпосередньо від розподільного щита провайдера та розведений по кімнатах + ТВ + розведення для професійної акустики, прокладено дві траси під кондиціонери + в основній кімнаті встановлено інверторний кондиціонер. Освітлення має безліч варіантів (верх, периметр по групах, прохідні вимикачі). Закладено слаботочку для встановлення відео домофону, камери, розетки у віконних відкосах, кабель на балкон під FM або Радіо антену. Тепла електрична підлога: ванна + кухня з можливістю програмування. Грамотно реалізовано систему вентиляції – у ванній 3 шт. (пасивна, активна + з таймером) Кухня – пасивна + витяжка. Заміна всіх (від входу до квартири) труб та сантехнічних комунікацій – холодна та гаряча вода, каналізація, радіатори опалення, система фільтрації води +5 Осмос, інсталяція з підвісним безободковим унітазом, ревізійний люк прихованого монтажу. Грамотне розведення по мокрих точках + німецькі самопромивні редуктори, нові лічильники, гігієнічний душ, бойлер 80 літрів (двохтеновий). Якісні (дорогі) три камерні вікна із замками. По всьому периметру та стеля – якісна шумо-теплоізоляція! У під'їзді домофон, парковка для Авто біля будинку завжди без проблем та на вибір! Загалом, квартира - мрія. Тепла взимку, прохолодна влітку. Продається с меблями та технікою. Причина продажу: поки робили ремонт, родина збільшилася - народилися дітки.
- Будинок в хорошому стані, доглянутий. Цегляний та теплий. Опрятний під'їзд. Затишний зелений двір. Є місце для парковки автомобіля. - Поряд вся необхідна для життя інфраструктура: магазини, супермаркет, ТРЦ, аптека, полікілніка, заклади харчування, відділення банку та пошти, зупинки транспорту. Метро 3хв пішки.
Суміжно-роздільна