Здається квартира Київ, Голосіївський (№ 111-993-644)
Ціна: 750 $

Характеристики
Ціна: | 750 $ |
---|---|
№ об'єкта: | 111-993-644 |
Кімнат: | 1 |
Поверх: | 9 / 9 |
Площа: | 39 / - / 16 м2 |
Адреса: Київ, Голосіївський
Оренда 1-кім квартири в ЖК Республіка, Київ.
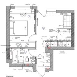
Повністю мебльована квартира з якісним ремонтом в ЖК Республіка. Побутова техніка Bosch (пралка, вбудовані посудомийка, духовка, вар.поверхня), Samsung (вбудований холодильник), 2 кодиціонери, батарея бесперебійного живлення підключена в щиток. Інтернет працює до 24 год без світла. Планування: передпокій з шафою, кухня-вітальня (диван розкладується в полуторне ліжко) з виходом на великий відкритий балкон, спальня (двоспальне ліжко, шафа-купе і робочий стіл), ванна кімната з повноцінною ванною, бойлером і теплою підлогою. Підлога - кварц-вініл, ламінат, плитка. Вікна виходять у закритий затишний закритий двір з ландшафтним дізайном. ЖК Республіка має чудову інфраструктуру - кавярні, ресторани, прогулянкові зони, велодоріжки, спортивні і дитячі майданчики, басейн і т.ін.