Здається квартира Київ, Шевченківський, Саксаганського вул.,, 131Б, м. Вокзальна (№ 111-939-957)
Ціна: 22 000 грн.

Характеристики
Ціна: | 22 000 грн. |
---|---|
№ об'єкта: | 111-939-957 |
Кімнат: | 2 |
Поверх: | 2 / 6 |
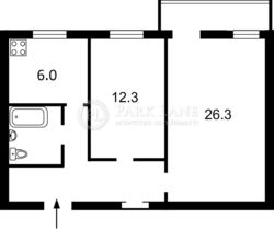
Площа: | 60 / 35.6 / 6 м? м2 |
Адреса: Київ, Шевченківський, Саксаганського вул.,, 131Б, м. Вокзальна
Саксаганського вул., 131Б
Сдам двухкомнатную квартиру ул. Саксаганского, 131Б. Царский дом после реконструкции в 1988году. Потолки 3,5 м. Вторая линия, тихий двор. В доме есть лифт, закрытый двор со шлагбаумом с бесплатной парковкой (заезд с ул. Жилянской и ул. Саксаганского). Две отдельные спальни 12,3м2 и 26,3м2, кухня, санузел с ванной, большой застеклённый балкон (8м2) со шкафами для хранения (можно использовать как кабинет). В квартире есть двуспальная кровать, мебель на кухне, стиральная машина, бойлер, холодильник.
Отличная транспортная развязка, рядом вся инфраструктура. До ст. метро Университет и Ботанического сада - 800 м.
Дореволюційний
Роздільне
Євроремонт