Здається квартира Київ, Шевченківський (№ 111-905-719)
Ціна: 177 000 $

Характеристики
Ціна: | 177 000 $ |
---|---|
№ об'єкта: | 111-905-719 |
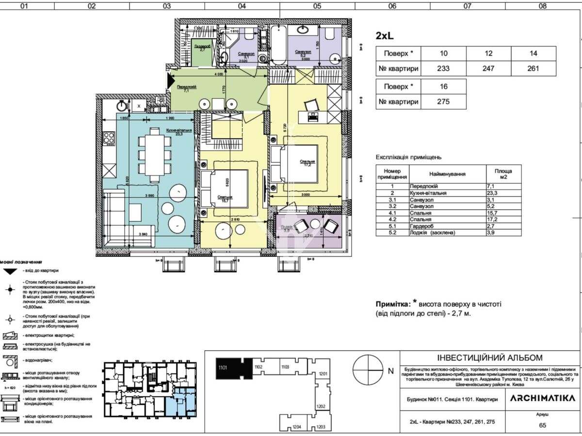
Кімнат: | 1 |
Поверх: | 10 / 16 |
Площа: | 78 / - / 23 м2 |
Адреса: Київ, Шевченківський
Твоя ВИДОВА квартира тут в ЖК Файна таун, метро Нивки., Квартира під назвою 'НАСОЛОДА ДЛЯ ОЧЕЙ' Перше, локація, ЖК Файна таун, один із найкращих місць для життя, тут затишно і цікаво. Різні зони для відпочинку, басейн, барбекю, багато зелені й розвинута інфраструктура. Легка доступність до метро Нивки та і в цілому до центра. Комплекс приватний, охорона 24/7, закрита територія, все задля вашої безпеки. Друге, квартира має чудове, просторе планування, велика кухня-вітальня, гардеробна та окрема спальня з власним хазяйським санвузлом. Краєвид з вікна ТОП, панорама 180, на ЖК і частину міста. Не всім так щастить. У квартирі почали ремонт, стіни підготовлені до фарбування, розведена вся електрика, встановлені міжкімнатні двері, закуплена сантехніка та на польне покриття. Тобто ремонт на стадії 80%. Є готовий дизайн проєкт, який притримувались під час ремонтних робіт. Він передається Вам після покупки. Насправді частина ремонту позаду, а це заощаджує ваші нерви та час, залишилось обрати колір стін та меблі і вуаля, за короткий час у Вас власна квартира під Ваш смак! Рахую, що слів більш ніж достатньо, потрібно дивитись. В подарунок отримаєте приємне спілкування, посмішку, та позитивний настрій в такий не простий час. Телефонуйте, до зустрічі на переглядах!.