Продається об'єкт Київ, Подільський, Межигірська 87а, м. Тараса Шевченка (№ 2-495-884)
Ціна: 47 712 грн.

Характеристики
Ціна: | 47 712 грн. |
---|---|
№ об'єкта: | 2-495-884 |
Поверх: | 1 / 4 |
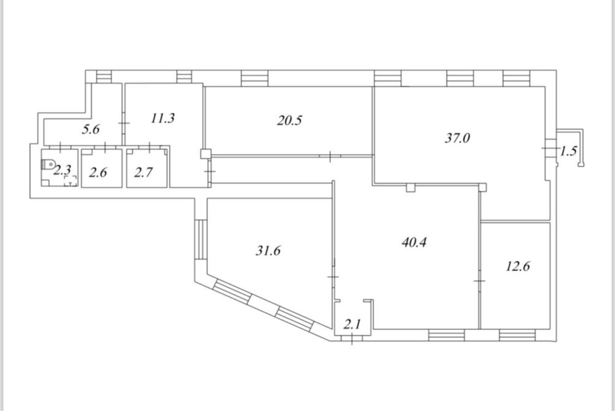
Площа: | 168 м2 |
Адреса: Київ, Подільський, Межигірська 87а, м. Тараса Шевченка
Працює генератор 168м2 - перший поверх
бізнес-центр «Межигірський»
-Поділ, метро Тараса Шевченка, три хвилини пішки
- доступ 24/7 -паркування •
можливість реєстрації юр.адреси
•нежитловий фонд
-Орендна ставка – 284 грн./м?
-Сервісні послуги - 42 грн/м
-Опалення - 34 грн./м2
Вода та електроенергія по лічильниках. На території цілодобовий пост фізичної охорони обладнано тривожною кнопкою виклику поліції та відеоспостереження
Відстань до найближчого міста: У місті;
Розташування: Окреме приміщення;
Тип обєкта: Бізнес центр;
Рік побудови : 2011 - 2015;
Cанвузол: Так;
Опалення: Індивідуальне газове;
Ремонт: Так;
Комфорт: Охорона території, Пожежна сигналізація, Автономний електрогенератор, Паркувальне місце, Кондиціонер;
Комунікації: Вивіз відходів, Центральна каналізація, Центральний водопровід, Електрика, Асфальтована дорога;
Інфраструктура (до 500 метрів): Офіси, бізнес центр, Центр міста, Відділення пошти, Метро, Відділення банку, банкомат, Транспортна розвязка;