Продається об'єкт Київ, Оболонський (№ 24-100-511)
Ціна: 111 999 $

Характеристики
Ціна: | 111 999 $ |
---|---|
№ об'єкта: | 24-100-511 |
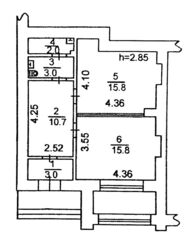
Площа: | 503 м2 |
Адреса: Київ, Оболонський
Володимира Івасюка просп. (Героїв Сталінграду), 4
Пропонується до продажу просторе комерційне приміщення площею 50,3 м?, розташоване у затишному дворі ЖК 'Оазис' за адресою: вул. Івасюка, 4. Основні особливості: Призначення: Раніше використовувалося як дитяча школа, згодом — офіс. За необхідності можливе збереження меблів. Планування: Складається з двох окремих кімнат, коридору з диваном, який може виконувати функцію зони прийому, а також санвузла з коморою. Вхід: Окремий вхід з вулиці, обладнаний металевими гратами для підвищення рівня безпеки. Безпека: Приміщення знаходиться на відстані 1,5 метра від проїжджої частини, що забезпечує додаткову теплоізоляцію та захист. Комунікації: Встановлені лічильники на воду та електроенергію.