Здається об'єкт Київ, Печерський (№ 15-109-167)
Ціна: 55 000 грн.

Характеристики
Ціна: | 55 000 грн. |
---|---|
№ об'єкта: | 15-109-167 |
Поверх: | 1 / 5 |
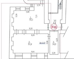
Площа: | 120 м2 |
Адреса: Київ, Печерський
Сдам Помещение. Шота Руставели 27А, Палац Спорта, Гулливер.
Аренда помещения по адресу: Шота Руставели 27а. Общая площадь: 120м2. На -1 этаже (цоколь). Планировка: прикреплена в фотографиях. Раньше была студия танцев, вещи убраны, помещение готово к новому арендатору. Два санузла, два зала, три входа в помещение (первые два через подъезд, где есть охрана, третий вход со двора. Есть возможность размещения фасадной вывески. Отличное расположение, вокруг множество кафе, супермаркетов, магазинов, активный пеший трафик. Рядом ТРЦ Гулливер, метро Палац Спорта и Льва Толстого.