Головна >> Оренда комерційної та торгівельної нерухомості >> Ріелтор Єрмохіна Катерина >> Об'єкт №15109038
Здається об'єкт Київ, Святошинський (№ 15-109-038)
Ціна: 350 грн.

Характеристики
Ціна: | 350 грн. |
---|---|
№ об'єкта: | 15-109-038 |
Поверх: | 1 / 1 |
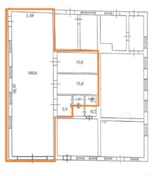
Площа: | 140 м2 |
Адреса: Київ, Святошинський
. Оренда Святошинський р-н. приміщення 140 кв.м..
* Нежитлове приміщення. * Загальна площа -140,65 кв. м. * Перший поверх одноповерхової будівлі з двома виходами. * Адреса: м. Київ, вул. Серпова, 11 (Святошинський р-н). * Біля будівлі – зручна парковка. * До метро Житомирська, пішки, 5-7 хв. * Ціна-350 грн.u002Fкв.м. * Приміщення підійде для розташування торгівельної діяльності, аптеки, б’юті сфери, спорт, фітнес та ін. * Сусідство: офіси, кав’ярні, магазини, школа, жилий масив тощо.