Здається об'єкт Київ, Солом'янський, В. Липківського, 45, м. Вокзальна  (№ 15-108-126)

Ціна: 250 грн.

Здається об'єкт Київ, Солом'янський, В. Липківського, 45, м. Вокзальна фото 1

Характеристики

Ціна: 250 грн.
№ об'єкта: 15-108-126
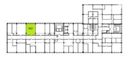
Поверх: 4 / 9
Площа: 56 м2

Адреса: Київ, Солом'янський, В. Липківського, 45, м. Вокзальна

ОФІС 56,72 м2 в БЦ 'НЕСТ' (Соломянська площа),вул. (Солом’янська площа, м. Вокзальна).
Характеристики:
Поверх: 4 з 9
-Планування – відкритого типу
-Ліфти: 3 пасажирські, 2 вантажні Оснащення:
-Безперебійна електрична система -tОпалення та кондиціонування
-Водопостачання та водовідведення Локація:
-Зручний доступ на громадському транспорті
-Паркінг на 100 паркомісць Інфраструктура:
-Банк, нотаріус, супермаркет NOVUS, кав’ярня, ресторан GAGA, фітнес-зал,
-Поруч парк ім. Зерова Безпека:
-Ресепшн сервіс
-Карткова система пропусків
-Охорона 24u002F7 -Пожежеоповіщення -Укриття на цокольному поверсі з двома входами -Система оповіщення під час повітряної тривоги

Умови оренди:
-Ставка: 250 грн/м2 без ПДВ
-Обслуговування: 50 грн.м2 без ПДВ.
-Комунальні послуги додатково
Без мокрої точки

Об'єкт на карті

Замовити зворотній дзвінок