Здається об'єкт Київ, Печерський, Іоана Павла, 16 (№ 15-105-006)
Ціна: 66 000 грн.

Характеристики
Ціна: | 66 000 грн. |
---|---|
№ об'єкта: | 15-105-006 |
Тип: | кафе, бар, ресторан |
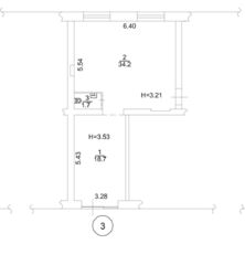
Площа: | 55 м2 |
Адреса: Київ, Печерський, Іоана Павла, 16
Оренда приміщення 55кв.м в центрі, Печерськ. Вул. Іоана Павла буд 16.
Оренда приміщення на 1му поверсі - 53кв.м в центрі міста.Печерськ, вул. Іоана Павла буд 16. Біля Житлового комплексу Taryan Towers Площа 53кв.м. Окремий, фасадний вхід(також є вхід з двору) вітрина, місце під рекламу. Гарна вхідна група! Ремонт виконується індивідуально, за рахунок подовженого часу «на заїзд» (обговорюється індивідуально. ~2 місяці) Всі роботи доведені до етапу облицювального оздоблення приміщення. Єлектроенергія потужністю 15кВт Під будь який вид діяльності, окрім алкоголю Повний пакет документів Н/Ф Навкруги багато навчальних закладів. Розвинена інфраструктура. До метро Печерська/Звіринецька. - 7хвилин